почему холодильник в углу вообще довольно популярное решение?да всё очень просто. Однотипные кухни, однотипные холодильники, одинаковая расстановка кухни. Всё стандартно
Я вот пожертвовала гостевым туалетом, чтоб туда хол-к поставить. Как раз вошел.
Ну а когда строила, то у меня запасной вариант для кухни - это цоколь. более 100 квадратов. Танцуй-не хочу)))
Плита и раковина у меня поменяны местамиугловая плита? А что в этом что то есть
Ха, Тете Бесичке предложить можно вместо раковины в углу




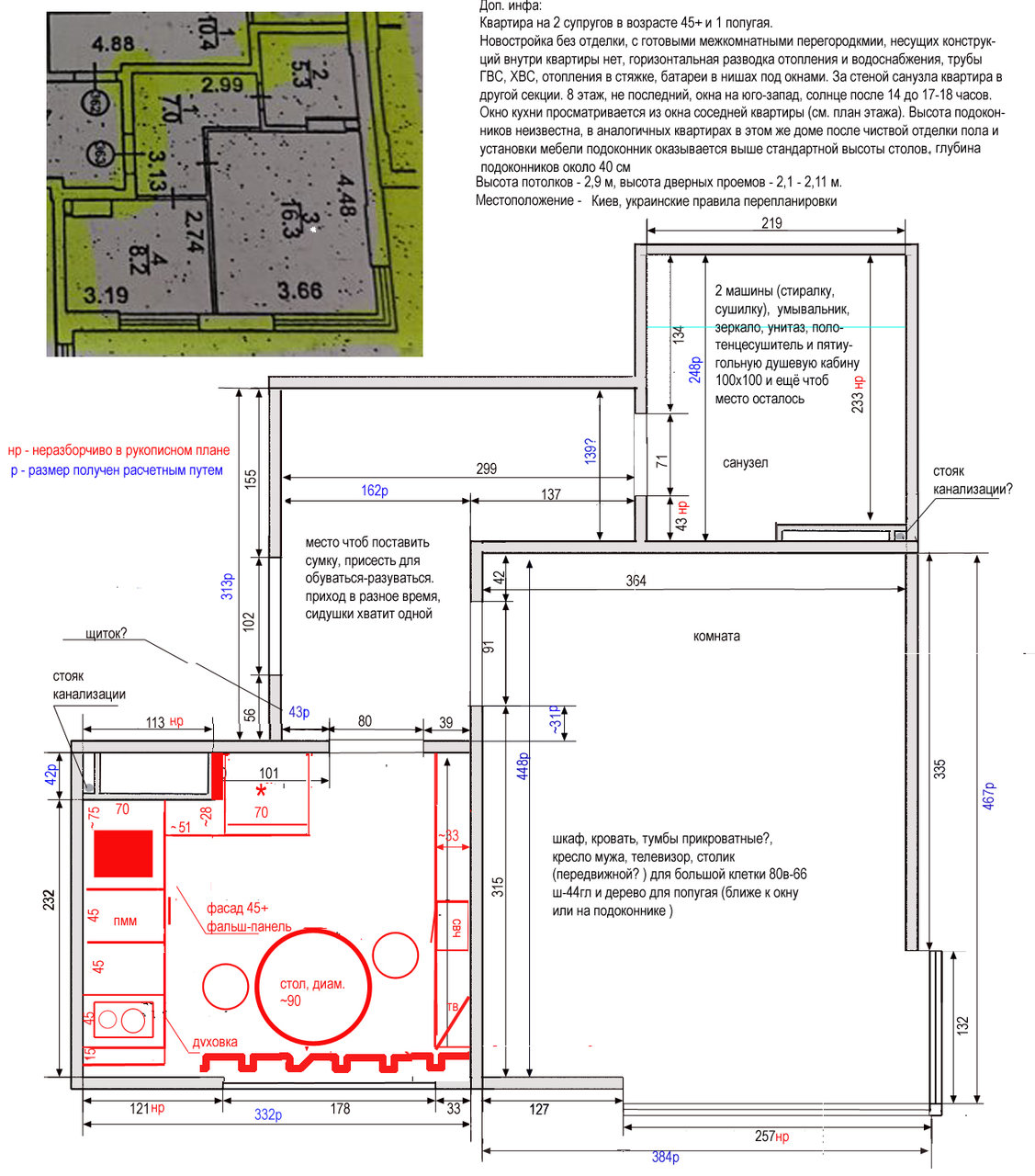
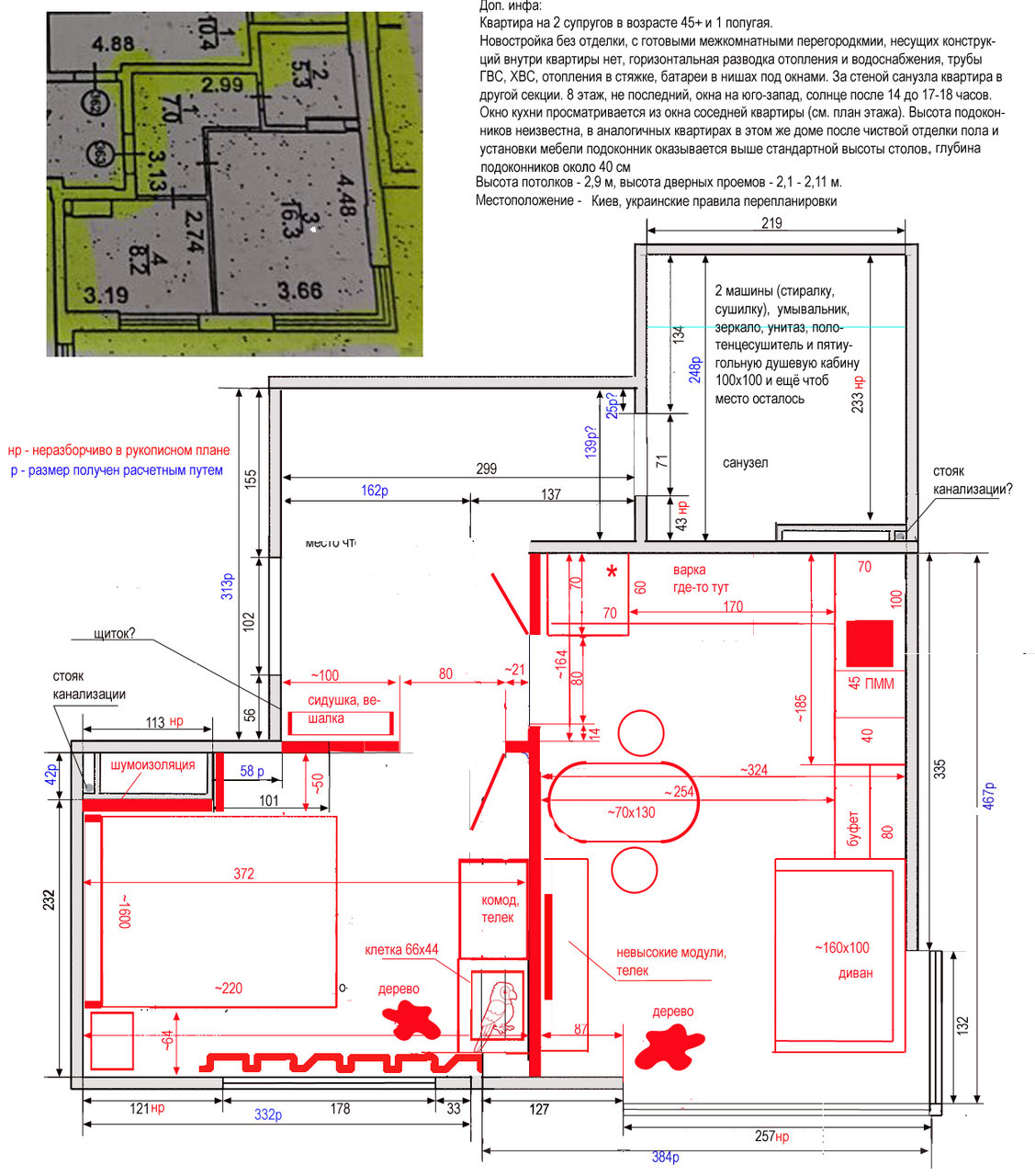
Саму гостиную зону я еще подробно не обдумала. Только рабочую, и то, не до конца.








