renard, я высказала своё мнение. Место в углу вообще мёртвое окажется. Плохи тем что не составляют одно целое, а разбиты. А в эскизе замерщика, так там для меня большие вопросы.
Мебель для кухни (страница 143)
lira70
Почему бы не продлить под окном столешницу до арки?Посмотрите внимательно на фотку.
На маленьком простенке у окна, чуть ниже подоконника видите темный квадрат?
Вот это, со слов тети Бэси, непереносимый выключатель.

А сам подоконник по высоте - 81 см. Если по откос сделать подстолье под мойку, лучше бы с каким нибудь скошеным или сглаженным краем столешки, то дальше можно было бы «ронять» столешку до уровня подоконника и тянуть до конца стены. Но... Там непереносимый выключатель. И столешку очень глубокой не сделаешь, потому что тогда с ростом тети Бэси будет неудобно окно открывать.
renard, я высказала своё мнение. Место в углу вообще мёртвое окажется. Плохи тем что не составляют одно целое, а разбиты. А в эскизе замерщика, так там для меня большие вопросы.Одно целое - это 158 см? Пусть тренируется побольше ходить, хотя бы между мойкой и плитой? )))))
Все не читала. Но холодильник Атлант нормально нельзя им пользоваться, если он открыт по 90 градусов. Надо больше. Единственное, у него внизу две ёмкости под фрукты-овощи. Можно одну вынуть, вторую подвинуть на ее место и тоже вынуть. Но полноценно выдвинуть обе, когда открыть ровно на 90 градусов -нельзя.
Вот когда имеем константу, не переносимые розетки и прочее. Видимо, уже был план, и нужно теперь следовать этому плану.
renard, вы теперь хоть что предлагайте. Розетки должны остаться там и всё..
Я бы вообще убрала конвектор и повесила на потолок инфракрасные обогреватели. В деревянном доме проводка должна быть открытой. Нравится/ не нравится это дело десятое. Вот тогда можно было б и подвигать мебель. А так нерациональное использование пространства.
Можно, конечно из розеток взять концы и продлить куда надо, или из распределительной коробки. Но.. это не делаем и получим разрезанную рабочую поверхность. И расстановка зависит теперь от розеток и выключателей.
renard, вы теперь хоть что предлагайте. Розетки должны остаться там и всё..
Я бы вообще убрала конвектор и повесила на потолок инфракрасные обогреватели. В деревянном доме проводка должна быть открытой. Нравится/ не нравится это дело десятое. Вот тогда можно было б и подвигать мебель. А так нерациональное использование пространства.
Можно, конечно из розеток взять концы и продлить куда надо, или из распределительной коробки. Но.. это не делаем и получим разрезанную рабочую поверхность. И расстановка зависит теперь от розеток и выключателей.
Тетя Бэся, а давайте проверим, сильно ли вам будет неудобно открывать окно, если вдоль всего окна будет столешница глубиной 60 см?
У вас же есть на чем смоделировать ситуацию. Поставьте свой маленький столик вдоль окна. Так, чтобы от края столика до стены с окном было 60 см. положите на столик какую-нибудь макулатуру до высоты подоконника. И попробуйте закрыть и открыть окно.
А то, может, я ошибаюсь, что вы со своим ростом через «подоконник» шириной 75 см дотягиваться до оконной ручки будете с трудом.
И может, все-таки получится тогда без сложных изгибов дотянуть столешку до конца стены, а выключатель вы как-нить все-таки перенесете?
Замечаний к эскизу замерщика можно и больше сделать. Я, например, не понимаю, по каким причинам большой стол между мойкой и «плитой» с дверцами, а не с ящиками. Удешевляли конструкцию?
И что-то маленькое для того, чтобы питаться.
А жаль, у окошка, но не прямо под окном, мойка то с хорошим естественным освещением получается.
Кстати, а какой все-таки был изначальный план и подо что на стене слева от входа в кухню сделаны 2 блока розеток?
У вас же есть на чем смоделировать ситуацию. Поставьте свой маленький столик вдоль окна. Так, чтобы от края столика до стены с окном было 60 см. положите на столик какую-нибудь макулатуру до высоты подоконника. И попробуйте закрыть и открыть окно.
А то, может, я ошибаюсь, что вы со своим ростом через «подоконник» шириной 75 см дотягиваться до оконной ручки будете с трудом.
И может, все-таки получится тогда без сложных изгибов дотянуть столешку до конца стены, а выключатель вы как-нить все-таки перенесете?
Видимо, уже был план, и нужно теперь следовать этому плану.Вот поэтому я первое, что выложила для тети Бэси - это замечания к эскизу замерщика. Потому что он кухню риовал, видимо, в соответствии с первоначальным планом. И предложила просто поставить в свободный угол у окна столик под мультиварку и СВЧ в тот же угол на кронштейны определить. Чтобы переделок поменьше. Но, оказывается, тетя Бася не любит пользоваться СВЧ на кронштейнах, для нее СВЧ надо ставить на столешку.
Замечаний к эскизу замерщика можно и больше сделать. Я, например, не понимаю, по каким причинам большой стол между мойкой и «плитой» с дверцами, а не с ящиками. Удешевляли конструкцию?
Все не читала. Но холодильник Атлант нормально нельзя им пользоваться, если он открыт по 90 градусов. Надо больше. Единственное, у него внизу две ёмкости под фрукты-овощи. Можно одну вынуть, вторую подвинуть на ее место и тоже вынуть. Но полноценно выдвинуть обе, когда открыть ровно на 90 градусов -нельзя.Во. В моем Либхере тоже самое. Белорусы, наверно, у немцев срисовывали.
renard, мне духовка на 60 не нужна, именно на 45Ну хорошо, значит. или ящики можно пошире сделать, или бутылочницу добавить, раз большая духовка не нужна.
Мойку для меня лучше на одной линии с плитой слева от нееЗначит, теперь будем рисовать кухню вдоль глухих стен, раз мойка справа от плиты не нравится.
И что-то маленькое для того, чтобы питаться.
А жаль, у окошка, но не прямо под окном, мойка то с хорошим естественным освещением получается.
Кстати, а какой все-таки был изначальный план и подо что на стене слева от входа в кухню сделаны 2 блока розеток?
«подоконник» шириной 75 смЭто уже тяжело. Проверено на себе. Хотя у меня столешка под окном 70
а выключатель вы как-нить все-таки перенесете?есть модули в столешку спрятать. Модуль выдвижной. Видела в кухнях Трио
Это уже тяжело. Проверено на себе. Хотя у меня столешка под окном 70Я на своем окне и столе прицеливалась, мне тоже показалось. что будет тяжело.
Поэтому я на схематичных картинках для тети Бэси всякие загогулины выводила переменной глубины возле окна. Но переделки, как она говорит. невозможны.
Так что номер с мойкой сбоку от окна и столешкой вдоль окна, видимо, не выйдет.
А жаль. Там и к канализации, и к воде. и к свету близко.
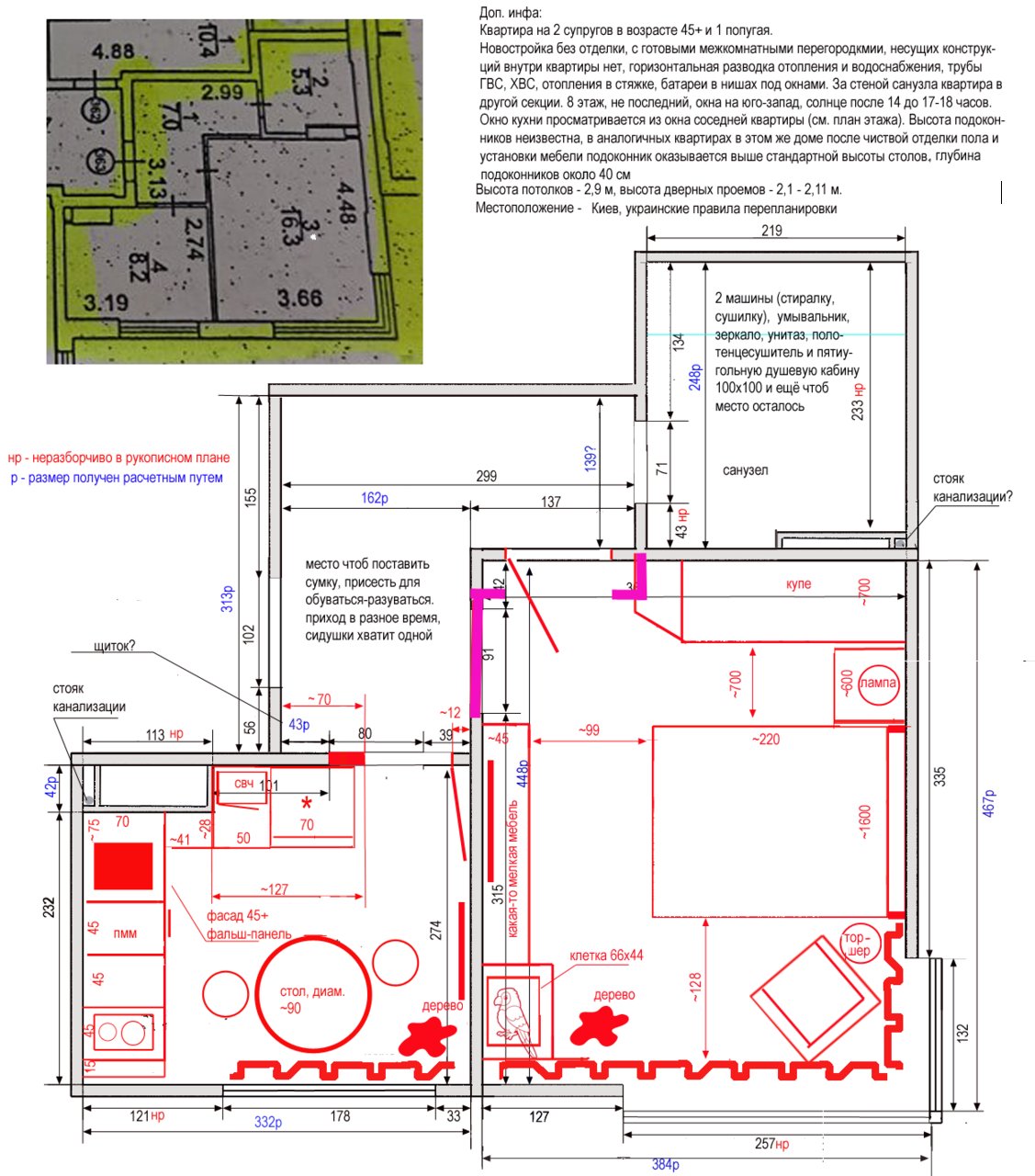
В своей квартире ещё не была, но раздобыла реальные размеры. Не все, но многие.Пачули. сейчас я тебя опять ругать буду. Что же ты сама себе так в плане с размерами то накосячила. Я наконец-то разобрала каракули твоих рабочих с обмерами.
И нужных размеров коридора как раз и не оказалось.
Не совсем разобралась в программе куда задавать размеры и пришлось тыкать мышкой, не совсем точно получилось. Прикинула по известным размерам высчитать коридор, то получается к ванной 140, к кухне 150.
С обмерным планом пока никак.
Я уже с рулеткой наготове :-)
И сверила их с планом. который ты рисовала в какой-то проге.
Не совпадает ничего. причем, в некоторых важных местах довольно лихо.
Например. ширина коридора у входа получается 162 см, а не 151, как ты в своей программке нарисовала. (кричи «Ура!»).
А вот ниша под установку кухни по каракулям строителей - на 3 см уже, чем тот размер. что ты давала. не 235, а 232. И т. д.
Ширину коридора после поворота, по поводу которой тут некоторые копья ломали. вычислить по имеющимся данным вообще невозможно. С габаритами санузла тоже неопределенность, там по каракулям вообще не разобрать, к чему относятся некоторые цифры, а некоторых нужных цифирей просто нет.
Вот каракули работяг:
Вот исправления того, что ты налабала в проге:

В конце некоторых размеров стоит буква «р». Эта пометка значит. что размер было возможно вычислить по записям. сделанным рабочими. и я его рассчитала. Где такой отметки нет - это цифры от работяг.
Ну, по кухне то что-то радикально исправления не меняют. Меньше получается запас на отделку ниши. А в остальном. по компоновке все тоже самое. Кухня в линию в нише. Холодильник у венткороба. И либо между холодильником и коробом ничего, а в нише слева от входа в кухню во всю стену мелкая мебель под разную технику, либо двигаешь проем, и в зависимости от того. как подвинешь, получается либо холодильник + что-то шириной 50 см под СВЧ. либо холодильник у венткороба, слева от входа ниша покрупней, поглубже, и в ней уже что-нибудь более существенное.
По поводу твоих сообщений, что дверной проем в кухню ближе к коробу не сдвигается больше, чем на 20 см - ты почти права. Только он не свигается больше не из-за того. что там коммуникации. а из-за того. что просто не очень большой.
А насчет того, что на этом простенке электрощиток, я думаю. ты ошиаешься. Щиток где-то на внешней стене квартиры. скорей всего.
В общем, добывай недостающие размеры. Получишь ключи - иди в квартиру с чем-нибудь, чем можно делать хорошие фоты. Меряй и фотай всё, каждый уступ. Все стояки, короба. отдушины, водопроводные и канализационные трубы. ниши с батареями, окна, подоконники, щиток, входную дверь и т. д.
Попробую сфотать, покажу
есть модули в столешку спрятать. Модуль выдвижной. Видела в кухнях ТриоНе... Это у них, наверно, освещение кухни, других то выключателей на кухне нет. Он ей в прямом доступе нужен, его прятать нельзя. Его переносить надо. если во всю стену с окном делать какую-то относительно широкую поверхность.
Это у них, наверно, освещение кухни,Нет, это именно выдвижные розетки и выключатель. Мне не нужно было, я не заострила внимания
Встраиваемые выдвижные розетки.
Вот моя кухня по проекту. Стиралка это ПММ не встраиваемая. На цвет фартука и столешки внимания не обращать, он поменялся
Я могу подойти к одной трети окна. А вот к последней дотянуться сложно.
Встраиваемые выдвижные розетки.Эх.. у Лены многое бы решили такие розетки.
Лена, а может быть, хотя бы для столика?
Так что номер с мойкой сбоку от окна и столешкой вдоль окна, видимо, не выйдет.Если поиграть шириной столешки, то выйдет От мойки уйти на мЕньшую ширину. Техника встанет.
Еще подшлифовала картинку с кухней тети Бэси с мойкой под окном.
Розетки подправила, на предыдущих не верный размер самих розеток был. Его же тетя Бэся не сообщала. Я по размерам своих розеток в машстабе отрисовала. А потом смотрю. че-та не сходится расстояние между розетками. Посчитала - а они у тети Бэси совсем какие-то маленькие. Наверно, накладные сдвоенные.
Ну, не суть. Интересен вот какой расчет.
Подоконник у тети Бэси высотой 810 мм.
Стандартная высота кухонных столов - 850 мм. Из них 38 может быть столешница.
Т. е. стандартный корпус с ножками без столешки 812 мм.
Практически вровень с бэсиным подоконником...
Если как на картинке выше - то столешница стандартной кухни просто бы легла на одно «ухо» подоконника.
но тетя Бэся хочет «уронить» кухню чуть ниже стандартного уровня. И в этом случае есть шанс. что столешка просто сровняется с подоконником. Смотря на сколько ронять кухню ниже стандарта собираются. смотря какой толщины подоконник. и смотря какой толщины выбрана столешка.
Оставлю картинку ей для размышлений, а завтра, может. нарисую угловую кухню по глухим стенам.

Розетки подправила, на предыдущих не верный размер самих розеток был. Его же тетя Бэся не сообщала. Я по размерам своих розеток в машстабе отрисовала. А потом смотрю. че-та не сходится расстояние между розетками. Посчитала - а они у тети Бэси совсем какие-то маленькие. Наверно, накладные сдвоенные.
Ну, не суть. Интересен вот какой расчет.
Подоконник у тети Бэси высотой 810 мм.
Стандартная высота кухонных столов - 850 мм. Из них 38 может быть столешница.
Т. е. стандартный корпус с ножками без столешки 812 мм.
Практически вровень с бэсиным подоконником...
Если как на картинке выше - то столешница стандартной кухни просто бы легла на одно «ухо» подоконника.
но тетя Бэся хочет «уронить» кухню чуть ниже стандартного уровня. И в этом случае есть шанс. что столешка просто сровняется с подоконником. Смотря на сколько ронять кухню ниже стандарта собираются. смотря какой толщины подоконник. и смотря какой толщины выбрана столешка.
Оставлю картинку ей для размышлений, а завтра, может. нарисую угловую кухню по глухим стенам.
Холодильник у венткороба. И либо между холодильником и коробом ничегоА если холодильник вплотную к венткоробу, а перпендикулярно ему от оставшейся части стены тумбу (или шкаф)? Получится 60см длиной (по боковой стенке холодильника) и около 30см глубиной. а если сдвинуть проход на 20см в сторону комнаты, то около 50 см глубиной, СВЧ встанет спокойно
Лёлька, шикарная компоновка кухни!!!
Марина, Niarma, Это почти копия моей московской кухни. Там помещение вытянутое с двумя окнами, а здесь квадрат. По площади равнозначны.
Хотела что то другое выдумать. Плясала плясала а все равно получилось также.)))
Хотела что то другое выдумать. Плясала плясала а все равно получилось также.)))
компоновка кухниНесмотря на углы и закуток, там очень удобно. Не надо делать лишних движений. А т. к. я не могу поднимать тяжелое, то вся, или почти вся техника встанет на верху. Духовка, хп и пара мв уйдут в маленькую кухню. Там же и морозильник. Но там не интересно, просто так, чтоб разместить (2,5 кв. м). И то, гарнитур переставляли и батарею перевешивали три раза))))
Тетя Бэся, смотрите. какой я занятный косяк нашла в эскизе вашего замерщика, если по расположению розеток вы дали правильные цифры.
Розеточки то как удачно попадают. Один блок прям за мойку. Второй блок в 3,5 см от газа.
Вы там разберитесь. у кого ошибки в замерах. У вас или у замерщика. Если у него, то вопрос ему задайте, а как вы будете пользоваться розетками при таком расположении мойки и варки?
А то отвечаете, что все в вашей кухне непереносимое, а тут такая красотень с электричеством в той компоновке, которая на эскизе.
А если вы ошиблись - тогда давайте новые правильные размеры. По неправильным и расчет неправильный будет.
Под какой план вообще розетки то делались? Может, вам к нему вернуться7
У нее в планах как раз столик 50 между холодосом и венткоробом. чтобы на него СВЧ всунуть.
А холодильник к венткоробу - плохо получается. Потому что она 70-ю столешку хочет. Расстояние маленькое выходит между выступом холодильника и мойкой.

Розеточки то как удачно попадают. Один блок прям за мойку. Второй блок в 3,5 см от газа.
Вы там разберитесь. у кого ошибки в замерах. У вас или у замерщика. Если у него, то вопрос ему задайте, а как вы будете пользоваться розетками при таком расположении мойки и варки?
А то отвечаете, что все в вашей кухне непереносимое, а тут такая красотень с электричеством в той компоновке, которая на эскизе.
А если вы ошиблись - тогда давайте новые правильные размеры. По неправильным и расчет неправильный будет.
Под какой план вообще розетки то делались? Может, вам к нему вернуться7
А если холодильник вплотную к венткоробу, а перпендикулярно ему от оставшейся части стены тумбу (или шкаф)? Получится 60см длиной (по боковой стенке холодильника) и около 30см глубиной. а если сдвинуть проход на 20см в сторону комнаты, то около 50 см глубиной, СВЧ встанет спокойноДа это все уже предлагали, Пачуля теперь переваривает.
У нее в планах как раз столик 50 между холодосом и венткоробом. чтобы на него СВЧ всунуть.
А холодильник к венткоробу - плохо получается. Потому что она 70-ю столешку хочет. Расстояние маленькое выходит между выступом холодильника и мойкой.
renardЧувствую себя двоичницей :-)
Пачули. сейчас я тебя опять ругать буду.
Отрезали ото всей компьютерной техники да и по здоровью у свекра вылезли большие проблемы. Закрутилась.
Да я бы лучше сама и не нарисовала.
Спасибо большое. Уже веселей у меня там ситуация?
Всем спасибо, читаю, перечитываю, примеряю и обдумываю.
Уже веселей у меня там ситуация?
На входе в квартиру - да, повеселей. На кухне без особых перемен. По комнате можешь гонять мебель по исправленному плану. А вот мебель в прихожей и санузел - темный лес.
Без размеров непонятно. что с ними получается и как их обставлять. Надо, не надо стенки двигать и перестраивать. Если надо - то как двигать.
Мы ж не знаем, что там за поворотом в коридоре. А вдруг там не 140, а вообще 130. А вдруг там наоборот все хорошо, не 140, а 160...
Совсем я запуталась, уже не понимаю ничего..
Еще раз хочу, девочки, сказать. Это теперь уже данность, что проводка скрытая и розетки, действительно уже никуда не деть и не перенести. Это ж не капитальные стены в квартире, где проштробил, замазал и вуаля. Тут протянуты провода в металлической гофре, сверху зашито все имитацией на ершеных гвоздях. Если начать их отдирать, то доска ломается и на выброс, а найти такую я уже не смогу, потому что ее привозил застройщик.
Изначально розетки были поставлены на правильную высоту -85 см, ровненько над столешкой попадали. А уже после прокладки электрики было принято решение настелить ламинат, это +1,5 см к высоте пола, значит розетки получаются на высоте 83,5 см, поэтому придется делать ниже столешницу. Соответственно и подоконник станет не 81 см, а 79,5 см.
Розетки.. те, что на короткой стене двойные, ближние к углу делались под бра, вторые сама уже теперь не знаю подо что, потому что с электриком была целая беда и я его в итоге выгнала, но накосячить он успел знатно! Например, прожектор в сторону огорода у меня включается с балкона второго этажа, а прожектор на задний двор у лестницы. Это обнаружилось когда уже стены зашили...
Изначально кухню планировала прямую, как замерщик нарисовал. Вообще, это ужасно сложно все держать в голове и представлять себе цельную картинку когда даже стен еще нет..
Ну что ж теперь делать, надо уже выкручиваться как-то с наибольшей пользой
Что я там еще должна была замерить?
От угла до арки (обналички) 140см. Если 70см отдать холодильнику, то что за стол влезет на оставшиеся 70 и как возле него усаживаться я не представляю.
Блоки тройных розеток по 22 см.
Газовая труба в 8 см от угла и на высоте 60(58,5) от пола
А еще в углах везде стоят нащельники, они 3 см. Я мерила от стен размеры, а не от нащельника. Если нащельник оставить, то все размеры надо уменьшать на 3 см., но и замерщик мерил от стен, потому что с нащельниками плотно к стене мебель не поставить, значит их надо будет убирать, по крайней мере в месте установки мебели.
Еще раз хочу, девочки, сказать. Это теперь уже данность, что проводка скрытая и розетки, действительно уже никуда не деть и не перенести. Это ж не капитальные стены в квартире, где проштробил, замазал и вуаля. Тут протянуты провода в металлической гофре, сверху зашито все имитацией на ершеных гвоздях. Если начать их отдирать, то доска ломается и на выброс, а найти такую я уже не смогу, потому что ее привозил застройщик.
Изначально розетки были поставлены на правильную высоту -85 см, ровненько над столешкой попадали. А уже после прокладки электрики было принято решение настелить ламинат, это +1,5 см к высоте пола, значит розетки получаются на высоте 83,5 см, поэтому придется делать ниже столешницу. Соответственно и подоконник станет не 81 см, а 79,5 см.
Розетки.. те, что на короткой стене двойные, ближние к углу делались под бра, вторые сама уже теперь не знаю подо что, потому что с электриком была целая беда и я его в итоге выгнала, но накосячить он успел знатно! Например, прожектор в сторону огорода у меня включается с балкона второго этажа, а прожектор на задний двор у лестницы. Это обнаружилось когда уже стены зашили...
Изначально кухню планировала прямую, как замерщик нарисовал. Вообще, это ужасно сложно все держать в голове и представлять себе цельную картинку когда даже стен еще нет..
Ну что ж теперь делать, надо уже выкручиваться как-то с наибольшей пользой
Что я там еще должна была замерить?
От угла до арки (обналички) 140см. Если 70см отдать холодильнику, то что за стол влезет на оставшиеся 70 и как возле него усаживаться я не представляю.
Блоки тройных розеток по 22 см.
Газовая труба в 8 см от угла и на высоте 60(58,5) от пола
А еще в углах везде стоят нащельники, они 3 см. Я мерила от стен размеры, а не от нащельника. Если нащельник оставить, то все размеры надо уменьшать на 3 см., но и замерщик мерил от стен, потому что с нащельниками плотно к стене мебель не поставить, значит их надо будет убирать, по крайней мере в месте установки мебели.
Елена, что сама видишь для себя? Сколько тебе нужно рабочей поверхности и сколько единиц техники нужно поставить? Т. е. пространство для тортиков и пространство для техники и где тебе удобнее, чтобы не привыкать на пару дней.
Дома у тебя кухня отличается по размеру? может, по возможности, как то перенести удобство и сюда
Дома у тебя кухня отличается по размеру? может, по возможности, как то перенести удобство и сюда
Изначально розетки были поставлены на правильную высоту -85 смЭммм... А кто вам сказал, что высота 85 для розеток - правильная?
Неудобно же будет вилки от электроприборов в розетки тыкать, особенно угловые, если розетки близко к столешке. Выше надо.
Ну, и чтобы не попадать вот такие ситуации тоже. В квартире. например. стяжка не задалась. Пришлось наливным полом поправлять. Потом покрытие не той толщины. которая планировалась, захотелось, потом столешку вместо дсп-шной жирную, потом еще плинтус какой-нибудь непростой, и привет, розетки надо переносить.
С запасом по высоте надо розетки делать. Не посреди фартука, конечно, но повыше. В столешницу упираться розетки не должны.
Ну, теперь уже у вас как есть. А остальным, кто как Пачули будет первый ремонт в новострое почти с голого бетона проходить, на ус мотать, какие бывают ошибки при ремонте кухни.
Блоки тройных розеток по 22 см.Как тройных? Вы же писали. блоки на 4 по длинной стене, и блоки на 2 по короткой.
Газовая труба в 8 см от угла и на высоте 60(58,5) от полаОт какого угла?
Что я там еще должна была замерить?
Больше, вроде, ничего не спрашивали.
На сколько арка выдается от стены померьте, как будет время.
И еще на какой высоте выключатель у входа? И точно ли он непереносимый? А если открытой проводкой за мебель и дальше из под мебели вынырнет и будет видно маленький кусочек кабеля?
Блоки тройных розеток по 22 см.А двойных, которые по стене покороче?
Изначально кухню планировала прямую, как замерщик нарисовал.Тогда почему розетки в опасных местах - за мойкой и рядом с варкой? Может. первоначальный проект все-таки отличался от того, что нарисовал замерщик?
Что я там еще должна была замерить?Я вспомнила. Надо померить ширину наличника на окне.
и еще толщину подоконника. в самой тонкой части меряйте.
А уже после прокладки электрики было принято решение настелить ламинат, это +1,5 см к высоте пола, значит розетки получаются на высоте 83,5 см, поэтому придется делать ниже столешницу. Соответственно и подоконник станет не 81 см, а 79,5 см.
Тетя Бэся, вы только кухню по высоте не уменьшайте за счет толщины столешки. Тонкую эконом не ставьте, она для такой встройки, как у вас, непригодна по толщине, если вы не в курсе. Можно кухню «уронить» на 1 см за счет уменьшения толщины столешки с 38 мм до 28 мм. Но тогда духовку из под варки надо убрать куда-то в другое место. И варка, скорей всего, будет выпирать в стол, в который ее встроили.
А вот насчет подоконника я не поняла. Почему вы думаете, что он станет ниже?
Как тройных? Вы же писали. блоки на 4 по длинной стене, и блоки на 2 по короткой. От какого угла?Затмение нашло Что значит «от какого угла»? две по три на длинной стене и 2 по 2 на стене слева от входа
На сколько арка выдается от стены померьте, как будет время.Померяю. наличник стандартный, около 1 см скорее всего
И еще на какой высоте выключатель у входа?
И точно ли он непереносимый? А если открытой проводкой за мебель и дальше из под мебели вынырнет и будет видно маленький кусочек кабеля?Точно
А двойных, которые по стене покороче? Тогда почему розетки в опасных местах - за мойкой и рядом с варкой? Может. первоначальный проект все-таки отличался от того, что нарисовал замерщик?Это было общее представление, что примерно тут будет варка, примерно тут будет мойка..
Я вспомнила. Надо померить ширину наличника на окне.Хорошо
и еще толщину подоконника. в самой тонкой части меряйте.
А вот насчет подоконника я не поняла. Почему вы думаете, что он станет ниже?
[/quote]
так пол то поднимется на 1,5 см
так пол то поднимется на 1,5 смА что, чистовой отделки пола у вас еще нет?
Разве ламинат у вас уже не уложен?
высота подоконника 81- это от еще от незастеленного ламинатом пола?
Что значит «от какого угла»?Да то и значит. Вы пишете «газовый стояк от угла 8 см». И как это понимать, где стояк?
У вас в кухне 4 угла. Надо опять протелепатировать, где стояк - в правом или в левом углу по стене напротив входа?
Это было общее представление, что примерно тут будет варка, примерно тут будет мойка..
Ну, тогда из вменяемого, так, чтобы розетки не в опасной близости от варки или мойки, не с мойкой, к которой канализационнная трасса длиной 2,5 метра или больше проходит за кухонными шкафами, с более-менее нормальным обеденным столом на троих и вполне нормального размера рабочими поверхностями, мне вам предложить нечего, кроме варианта с мойкой вдоль стены с окном.
Если я вам изображу угловую кухню вдоль глухих стен, то негде ставить нормальный обеденный стол.
Если я поменяю местами «плиту» и мойку, то получится меньше рабочих поверхностей, и плита в углу.
Если я поменяю местами холодильник и мойку, то мойка получится далеко от вывода канализации, для холодильника придется закладывать больше 10 см на открытие дверцы, потому под окном выступают подоконник и конвектор.
Так что с учетом расположения розеток и их «непереносимости» лучше всего получается та компоновка, что на последней картинке. Можно немного поиграть с шириной модулей. Например, между хоолодильником и плитой сделать модуль немного поуже, между мойкой и плитой побольше.
Если вам категорически не нравится мойка справа от плиты, то поменяйте местами холодильник и мойку. Только учтите, что тогда придется больше места отвести на открытие дверцы холодильника, канализационная трасса к мойке выйдет длиннее и хуже доступной, а на обеденный стол останется меньше места.
Тетя Бэся, еще вопрос. Розетки под бра - они каким кабелем положены 2х1,5 или 3з2,5, и есть ли в них заземление? Они пригодны для того. чтобы в них что-нибудь кроме осветительных приборов и совсем маломощной техники втыкать?
Все... Дальше уже без переделок остается предлагать всякую хрень.
Например такую «очень удобную» вещь, как линейная кухня с 60-й мойкой в углу у окна.
Но... Такие предложения не вписываются в мои представления об удобной кухне. Я никогда не рисую 60-е мойки по углам или впритык к высоким предметам (холодилнику, колонне с техникой и т. д.)
Это пусть кто-нибудь другой предлагает.
две по три на длинной стене и 2 по 2 на стене слева от входаДве по три на длинной стене шириной 22 см не сходятся на пару сантиметров с данными раньше расстояниями между розетками и длиной стены. В сумме 3140 получается, а не 3160.
Ну ладно, пара сантиметров туда-сюда от розеток в этой кухне не спасет. Напишу на картинке, что блоки розеток по 3 штуки шириной примерно 23 см.
Странно, вначале Вы на плане сами помечаете газовый стояк в нужном углу (до этого я пишу в каком именно углу он находится), а потом спрашиваете про угол и раздражаетесь
Да чистовой отделки еще нет, но ее высота достоверно известна (подложка+ламинат=1,5см)
Значит не будет обеденного стола в кухне
Я в Икеа нашла какой-то планировщик и при помощи него нарисовала форму, но только форму, потому как там какая-то совершенно глючная программа и выбор модулей, видимо только из продажных. Но Общее впечатление от того, что мне нужно, есть
Размеры кухни я ввела свои. Арок там в программе нет, только двери.
То есть справа -налево
Столик небольшой у окна поместится, только шторку надо будет сделать короткую
Да чистовой отделки еще нет, но ее высота достоверно известна (подложка+ламинат=1,5см)
Значит не будет обеденного стола в кухне
Я в Икеа нашла какой-то планировщик и при помощи него нарисовала форму, но только форму, потому как там какая-то совершенно глючная программа и выбор модулей, видимо только из продажных. Но Общее впечатление от того, что мне нужно, есть
Размеры кухни я ввела свои. Арок там в программе нет, только двери.

То есть справа -налево
- начать с бутылочницы под масла и уксусы,
- потом варочная с духовкой (под розетки не попадет, вытяжка тоже в проекции вентканала), делее рабочая поверхность для готовки, тут встанет чайник и техника по требованию
- мойку, чтобы не попала под розетки можно сместить максимально влево, но очень хотелось ы чтобы подход к ней был не лицом в угол, а лицом в длинную стену (не смогла отрисовать сама)
- в углу на рабочей поверхности может встать микроволновка или мультиварка
- дальше (уже по короткой стене еще маленький кусочек рабочей поверхности
- холодильник
Столик небольшой у окна поместится, только шторку надо будет сделать короткую
Странно, вначале Вы на плане сами помечаете газовый стояк в нужном углу (до этого я пишу в каком именно углу он находится), а потом спрашиваете про угол и раздражаетесьЯ не раздражаюсь. Буквы на экране не передают интонации.
На плане я газовый стояк не обозначала, там обозначены выводы воды и канализации, а на последних картинках даже надпись имеется, что это за маленькие разноцветные кружочки в углу.
-потом варочная с духовкой (под розетки не попадет,как на картинке в планировщике - попадает прямо под блок розеток.
-мойку, чтобы не попала под розетки можно сместить максимально влево, но очень хотелось ы чтобы подход к ней был не лицом в угол, а лицом в длинную стену (не смогла отрисовать сама)Мойка в углу с чашей максимально близко к стене - плохо. В угловой кухне мойка с чашей к стене - совсем какашка.
Как на картинке в планировщике нарисовано - нормально. А сместите чашу в угол - и получится говно.
Но только как на картинке в планировщике нарисовано - розетки получаются за чашей мойки.
- начать с бутылочницы под масла и уксусы,Бутылочница будет для верхних полок? Или она будет выезжать из базы только сантиметров на 25?
Простенок между наличником окна и углом 970 мм, на наличник наезжает подоконник.
За кухней, если мойку делать в тому углу. что вы нарисовали. придется пропустить трубы и выдвинуть модули вперед. Вы для этого столешку 700 с замерщиком сочиняли.
970-700=270.
Тетя Бэся, я тут в теме, когда обсуждали плюсы и минусы мелкой плитки для кухонного фартука, истории всякие писала про мелкие косяки в своей кухне, которую давно ремонтировала.
В том числе была история про то, как у меня в этой кухне лопнула рамка на розетках, которые были слишком близко расположены к электрической варочной панели. Но благодаря тому, что плитка на фартуке была мелкая, косяк удалось относительно легко подправить.
Я ошиблась в своей кухне с расположением и количеством розеток Розеток можно было бы и поменьше, расстояние между розетками и варкой побольше. Но у меня блок получился в 5 см сбоку от варки.
Мне казалось, что этого расстояния от варки до розеток достаточно.
В итоге у меня однажды на блоке от жара, который исходил от большой кастрюли, стоящей на варке, лопнула рамка, и в самой розетке, ближней к плите, пластик тоже лопнул.
Пришлось переделывать, уменьшать блок, переклеивать плитку возле блока.
Так у меня электрическая варка... А с газом то возле розеток еще страшнее.
В общем. не делайте розетки близко к плите и мойке, это опасно.
как на картинке в планировщике - попадает прямо под блок розеток.Давайте считать:
20 см бутылочница+ 45 подстолье для духовки и варочной. Из 45 см площади 30 см займет собственно варочная (по центру), по 7,5 см остается с каждой стороны. Значит полезная площадь рабочей поверхности столешницы справа от варочной 27,5.
Слева от варочной, если считать от угла до края блока розеток 83,5 см.
Куда они попадают? 27,5+30=57,5 До розеток еще 83,5-57,5=26см
Бутылочница будет для верхних полок? Или она будет выезжать из базы только сантиметров на 25?Для нижних, выезжать будет насколько позволит обналичка окна. Наверное, это будет не супер-удобно, но это жертва
Как на картинке в планировщике нарисовано - нормально. А сместите чашу в угол - и получится говно.Давайте считать:
Но только как на картинке в планировщике нарисовано - розетки получаются за чашей мойки.
от угла до края блока розеток 90 см. Посмотрите на мой угол на кухне в квартире



Мне очень удобно! Ширина столешницы слева всего 43 см. В ящиках сверху вниз у меня столовые приборы, кухонные полотенца, внизу всякие мелочи типа терок-скалок. Для этих целей глубины хватает и больше не надо. Ширина основной столешницы у меня 59см. Если измерить от угла до центра моей мойки, то получается 62 см.
Почему я не могу сделать то дже самое на даче, если до розеток от угла у меня 90? Я не понимаю
Простенок между наличником окна и углом 970 мм, на наличник наезжает подоконник.Значит бутылочница будет выползать до наличника, то есть на 27 см
За кухней, если мойку делать в тому углу. что вы нарисовали. придется пропустить трубы и выдвинуть модули вперед. Вы для этого столешку 700 с замерщиком сочиняли.Именно! Вот трубы продлить или повернуть это единственное, с чем нет проблем
970-700=270.
А вот угол у сына, та же ситуация, только мойка у него дальше от угла, там целесообразнее было в углу побольше места оставить. но если сместить саму чашу мойки, получится тоже хорошо. Никого не напрягает

А этот угол внизу это просто доп кладовка, чесслово! Туда человек поместиться может при желании. Он там в глубине хранит все хозяйственные мелочи- пасты, тряпки-губки, пакеты, кастрюли-миски поближе, чтобы доставать сподручнее, внизу контейнеры с овощами. А прямо под мойкой мусорное ведро
У меня под мойкой мусорное ведро,30-литровый бойлер, на дверце полочка, на ней все пасты, губки-тряпкки, мешки для мусора, порошок и опаласкиватель для ПММ
от угла до края блока розеток 90 см. Посмотрите на мой угол на кухне в квартиреТетя Бэся. У вас на эскизе из планировщика модули явно не 40. И вы писали именно о сдвиге в угол мойки, а не подстолья под нее. Я подумала, вы саму чашу в угол собрались загнать.
Угловые кухни переменной глубины я тут уже несколько раз рисовала. и много раз писала, что прямоугольное подстолье под мойку лучше не зарезать больше, чем до 80 см.
Блок розеток у вас при таком урезанном подстолье окажется в 10 см в плане от чаши мойки.
А розетки не рекомендуется размещать к мойке ближе. чем на 20 см в плане от чаши мойки.
Но, каждый, конечно, сам себе злобный Буратино. Считаете, что 10 см от мойки до розеток достаточно - ну так делайте. Потом в форуме расскажете, действительно достаточно, или как.
Я вот уже жила с розетками в 5 см от варочной панели в плане, хотя рекомендуется больше. Ну, полопался у меня блок однажды. Переделала. Теперь 10 см от варочной до розеток в плане. Хотела 20, но плитки лишней не осталось на такую переделку. И большие кастрюли я на конфорку, ближнюю к розеткам, больше не ставлю. А сделала бы 20 - могла бы спокойно этой конфоркой пользоваться и забыть. что у меня блок розеток.
Я в Икеа нашла какой-то планировщик и при помощи него нарисовала форму, но только форму, потому как там какая-то совершенно глючная программа и выбор модулей, видимо только из продажных. Но Общее впечатление от того, что мне нужно, естьЯ думала, что Вы читаете написанное
Размеры кухни я ввела свои.Арок там в программе нет, только двери.![]()
Пошла на кухню, отмерила от левой своей стены 90 см и попыталась представить, бывает у меня там стена в брызгах, аль нет... Ну вообщем, я так руками не размахиваю и как утка не полощусь
И как по процитированному догадаться, что вы задумали урезать модули сбоку от мойки по глубине?
По-моему, вы переоцениваете телепатические способности собеседниц.
По-моему, вы переоцениваете телепатические способности собеседниц.
Мне очень удобно!Какой диаметр у раковины? Выглядит очень маленькой, объёмную посуду в ней мыть удобно или у вас посудомойка?
Я показала просто форму. Просто. Форму.
Хрен с ним, проехали.
Идея жизнеспособная?
Внутренний диаметр 37, нормально мою и кастрюли и сковороды. ПММ ессть, но сковородки я вручную мою, кастрюли от мультях тоже, даже чащу АГ
Хрен с ним, проехали.
Идея жизнеспособная?
Внутренний диаметр 37, нормально мою и кастрюли и сковороды. ПММ ессть, но сковородки я вручную мою, кастрюли от мультях тоже, даже чащу АГ
Тетя Бэся, по итогу обсуждения бутылочницы в углу.
Очередное дополнение к замечаниям по эскизу замерщика.
Верхние ящики без фальш-панели сбоку врезались бы в наличник.
Ну, видимо, как на эскизе, делать вы не будете. Так, если общаться еще раз придется с этим человеком, мордой тыкнете в косяки.
А сами подумайте, стоит ли жадничать в сантиметрах на какую-нибудь маленькую фальш-панельку сбоку от устанавливаемого в угол модуля, чтобы в этом модуле дверцы или ящики нормально открывались.
Угловая кухня с разной глубиной модулей по разным сторонам угла - это не совсем тоже самое, что угловая кухня с модулями одинаковой глубины по сторонам угла.
Я через интернеты мозг другого человека сканировать не умею.
И «ухи» подоконника. И толщину подоконника в самом тонком и самом толстом месте.
Подоконник у вас ведь судя по фото не полностью на наличник наезжает, надо все эти мелочи учесть, если в угол, где замерщик рисовал стол с ящиками, а вы - бутылочницу, засовывать что-то с выдвигающимися ящиками. да и с дверцами тоже.
Очередное дополнение к замечаниям по эскизу замерщика.

Верхние ящики без фальш-панели сбоку врезались бы в наличник.
Ну, видимо, как на эскизе, делать вы не будете. Так, если общаться еще раз придется с этим человеком, мордой тыкнете в косяки.
А сами подумайте, стоит ли жадничать в сантиметрах на какую-нибудь маленькую фальш-панельку сбоку от устанавливаемого в угол модуля, чтобы в этом модуле дверцы или ящики нормально открывались.
Я показала просто форму. Просто. Форму.Показана была просто другая форма. Просто другая.
Угловая кухня с разной глубиной модулей по разным сторонам угла - это не совсем тоже самое, что угловая кухня с модулями одинаковой глубины по сторонам угла.
Я через интернеты мозг другого человека сканировать не умею.
Идея жизнеспособная?Пока не могу точно ответить, надо посчитать.
Померяю. наличник стандартный, около 1 см скорее всегоШирину наличника еще на всякий случай. Сколько он в ширину?7? 8? 10?
И «ухи» подоконника. И толщину подоконника в самом тонком и самом толстом месте.
Подоконник у вас ведь судя по фото не полностью на наличник наезжает, надо все эти мелочи учесть, если в угол, где замерщик рисовал стол с ящиками, а вы - бутылочницу, засовывать что-то с выдвигающимися ящиками. да и с дверцами тоже.
Не надо туда, кроме бутылочницы, ничего засовывать, ни с ящиками ни с дверцами
Верхние модули имеют меньшую глубину, чем нижние, с открыванием проблем вообще не будет, наличник тут ни с какого боку, ИМХО.
Зачем Вам этот параметр? Ясно же, что к мебели отношения не имеет. При великом моем желании открывать бутылочницу на всю катушку, я могу пильнуть нахрен эту обналичку или заказать у соседа ее заузить или вообще другую сделать, это ж не розетки переносить
И наличник не пришей звезде рукав, где мебель, а где наличник.. Вы не в мэрии, часом, служите?
Вот двери холодильника надо будет перенавешивать, а у меня есть парочка знакомых, которые перенавешивали и говорят, что для герметичности это не айс..
Верхние модули имеют меньшую глубину, чем нижние, с открыванием проблем вообще не будет, наличник тут ни с какого боку, ИМХО.

И наличник не пришей звезде рукав, где мебель, а где наличник.. Вы не в мэрии, часом, служите?
Вот двери холодильника надо будет перенавешивать, а у меня есть парочка знакомых, которые перенавешивали и говорят, что для герметичности это не айс..
что для герметичности это не айс..Подтверждаю, у нас на первых порах были проблемы, потом подкручивали, через какое-то время карточку подкладывали, так она на скотче и прилеплена лет 6. У свекрови тоже после перевешивания плохо закрывается и дверца сама отходит и пищит. Бывает, что холодильник табуретом стоит подпертый.
Эля, а перенавешивали сами или специалист?
Зачем Вам этот параметр?Да мне вообще-то до лампочки ваши обмеры и параметры, думаю, как и остальным участницам обсуждения. Нормальный обмерный план с максимальной информацией о каждом уступе в вашей кухне не мне нужен, а вам. Я его пытаюсь для вас изобразить. Ну, хорошо, раз размеры наличника - это такая большая тайна, так пусть она остается при вас. ))
Не надо туда, кроме бутылочницы, ничего засовывать, ни с ящиками ни с дверцамиТо есть попытаться выгадать лишние сантиметры на открытие бутылочницы без переделки наличника вам не надо.
.
Вы не в мэрии, часом, служите?С какой целью интересуетесь?
Тетя Бэся, кажется, какой-то мастер, естественно не из сервисного центра, а обычный по вызову.
и говорят, что для герметичности это не айс..значит что то не так сделали. Два Атланта (себе и золовке), Националь и Сименс Все дверцы перевешены. Атланты пока 7 лет служат, а последние два уж и не помню. Сами перевешивали
Сами перевешивалиЯ ваще самолично дверь перевешивала у своего старого Саратова. Как же он сопротивлялся!
Я при выборе нового холодильника обязательно смотрела возможность перевешивания дверей. Сразу при покупке оплатила в магазине эту услугу перевешивания дверей и привезли уже готовый холодильник. Работает без нареканий уже с 2005 года, пережил 2 переезда. Ничего не пропускает, прилегание дверцы как в новом! Аристон. Просто хол. надо выставлять по уровню, а не на глаз.
Зачем Вам этот параметр?
Вы не в мэрии, часом, служите?
И наличник не пришей звезде рукав, где мебель, а где наличник..
Примерно в 29 сантиметрах от наличника ваша мебель, если кухня с 70-й столешницей, вот где наличник, а где мебель.
Вот план вашего помещения с подробностями, которые вы сочли нужным сообщить.
Возможно, он облегчит вам планирование кухни, по крайней мере, если с кем-то обсуждать, то у собеседников меньше вопросов будет.
Успехов в пришивании рукавов к звездам, а я пойду, поинтересуюсь. как там дела в мэриях.

Светта, вот я тоже дума, сама колхозить не буду
Я ваще самолично дверь перевешивала у своего старого Саратова. Как же он сопротивлялся!И тут песня в вашу честь.))))


Мне тоже несколько раз приходилось перевешивать дверь на холодильнике самой, нормально все закрывается.
renard, ну вот... обиделась
Просто я за 30 км от того наличника
Красота какая, мне б так уметь! Спасибо сердечное за план. Давайте мириться? Задергали меня просто все проблемы. Одна (!) женщина (!) гуманитарий (!) занимается два года стройкой с ноля. Не мудрено, что я что-то упустила, что-то сделала не так, не продумала, не досчитала.. Пойду поплачу пока никто не видит..
Просто я за 30 км от того наличника
Красота какая, мне б так уметь! Спасибо сердечное за план. Давайте мириться? Задергали меня просто все проблемы. Одна (!) женщина (!) гуманитарий (!) занимается два года стройкой с ноля. Не мудрено, что я что-то упустила, что-то сделала не так, не продумала, не досчитала.. Пойду поплачу пока никто не видит..
Давайте миритьсяЛадно.
По кухне углом с модулями разной глубины.
Во-первых, получается близко розетка к мойке. Расстояние от мойки до розетки не нормируется, но есть разные рекомендации мебельных фабрик, мебельщиков и тому подобных не делать розетки ближе, чем на 20 см от мойки. Я со своими косячными розетками возле варки еще могу добавить, что на своей шкурке испытала, что ближе. чем на 20 см к варке розетки тоже лучше не делать. Даже к индукционной, которая при работе греется меньше других плит.
Потому что от крупной посуды на плите может исходит жар, от которого розетка испортится. Ну, и вообще, пар, жир, испарения, розетки когда близко к плите со временем неприятным жиром обрастают, который с рамки смывается относительно легко, а вот внутри приходится всякими ушными палочками или чем-нибудь подобным розетку приводить в порядок.
Во-вторых, в той компоновке, которую вы описали, расстояние между варочной поверхностью (газовой, ага, которую мыть сложнее) и чашей мойки составляет примерно 1,7 метра.
А больше 1,2 метров между варкой и мойкой эргономисты делать не рекомендуют.
Неудобно будет мыть варку, ухаживать за фартуком за варкой, и вообще далеко от мойки до варки ходить.
Анчик вот, у которой от мойки до варки 1,2 метра, эту цифру в обсуждении подтверждала, когда ей некоторые советовали прохерачить рабочую поверхность больше 1,2 метров.
И. в третьих. чем канализационная трасса короче и доступней - тем лучше. Да и водопроводная тоже.
А можно ли сделать что-нибудь, чтоб в вашей угловой кухне вдоль глухих стен плита была не в километре от мойки - это я пока не считала.
Тогда уж в нашу.Мне тоже несколько раз приходилось перевешивать дверь на холодильнике самой,И тут песня в вашу честь.))))
Спасибо, я её не слышала.
Тетя Бэся, можно попробовать вот так посчитать:
Мойку определить ровно по центру между блоками розеток. расстояние от мойки до розеток получится на пару сантиметров меньше рекомендуемого. Справа от мойки как вы себе и рисовали «плиту», слева какие-то модули, которые дальше можно повернуть углом.
Рабочая поверхность между варкой и мойкой получится небольшая, но уж точно не меньше рекомендуемой минималки в 50-60 см. И канализационная трасса короче.
Вопрос. Заморочек по поводу того, что из гостиной видно на кухне, у вас нет?
А то бывает, владельцы кухонь-гостиных очень заморачиваются. чтобы из гостиной не было видно рабочую зону кухни или если и было видно, то не мойку и не плиту.
А повернутые на красивостях дизайнеры-эстеты сочиняют такие планировки квартир и компоновки мебели, при которых рабочая зона кухни прячется от гостиной зоны. Чтоб не дай бог не случилось, что когда хозяин кухни-гостиной будет сидеть на диване у телека, он видел бы с этого места не только телек, но и немытую посуду возле раковины и каструли на плите.
Ну, вот Сенса вспомнить... Человек заморачивался тем, чтобы рабочая зона кухни не была похожа на кухню, потому что это у него кухня-гостиная.
Тетя Бэся, и еще такое соображение по поводу угловой кухни и обеденной зоны под окном.
Неудобно может быть у плиты крутиться, если за столом сидят три человека.
2460 ширина помещения. 700 глубина кухни по столешке.
Остается 1762 на стол и проходы. Допустим, стол будет минимальной ширины 600. Тогда проходы получаются примерно по 58 см. кто-то сел за стол в угол у плиты, второй подойти к плите не может.
Ну, и вылезать будет стол в проход на кухню то...
Тетя Бэся, и еще вопрос. А высоту подоконника вы как измеряли? 810 - это от чернового пола до верха подоконника, т. е. до поверхности, на которую можно что-то поставить?

Мойку определить ровно по центру между блоками розеток. расстояние от мойки до розеток получится на пару сантиметров меньше рекомендуемого. Справа от мойки как вы себе и рисовали «плиту», слева какие-то модули, которые дальше можно повернуть углом.
Рабочая поверхность между варкой и мойкой получится небольшая, но уж точно не меньше рекомендуемой минималки в 50-60 см. И канализационная трасса короче.
Вопрос. Заморочек по поводу того, что из гостиной видно на кухне, у вас нет?
А то бывает, владельцы кухонь-гостиных очень заморачиваются. чтобы из гостиной не было видно рабочую зону кухни или если и было видно, то не мойку и не плиту.
А повернутые на красивостях дизайнеры-эстеты сочиняют такие планировки квартир и компоновки мебели, при которых рабочая зона кухни прячется от гостиной зоны. Чтоб не дай бог не случилось, что когда хозяин кухни-гостиной будет сидеть на диване у телека, он видел бы с этого места не только телек, но и немытую посуду возле раковины и каструли на плите.
Ну, вот Сенса вспомнить... Человек заморачивался тем, чтобы рабочая зона кухни не была похожа на кухню, потому что это у него кухня-гостиная.
Тетя Бэся, и еще такое соображение по поводу угловой кухни и обеденной зоны под окном.
Неудобно может быть у плиты крутиться, если за столом сидят три человека.
2460 ширина помещения. 700 глубина кухни по столешке.
Остается 1762 на стол и проходы. Допустим, стол будет минимальной ширины 600. Тогда проходы получаются примерно по 58 см. кто-то сел за стол в угол у плиты, второй подойти к плите не может.
Ну, и вылезать будет стол в проход на кухню то...
Тетя Бэся, и еще вопрос. А высоту подоконника вы как измеряли? 810 - это от чернового пола до верха подоконника, т. е. до поверхности, на которую можно что-то поставить?
renard, я еще перемеряю подоконник, потому как не помню, до низа или до верха, а что от чернового это точно, я выше писала, что после укладки ламината будет 79,5
Если мойку между розетками, то опять получаю рваную рабочую поверхность, вроде и место, а вроде и нет его.. ни тесто раскатать, ни котлет ни набросать.. Не.
Честно, меня розетки ни грамма не парят Обосную
Газ оставила потому, что это таки СОТ и бывает, что там проблемы со светом. Например, в грозу наш местный электрик приветственно вырубает общий рубильник Вообщем чисто для чайника
Подскажите мне, как мне поступить в углу с верхним шкафом, не получилось у меня отрисовать в этом месте и в углу, где вводы газа и коммуникаций.Не нашлось в программе соответствющих шкафов
Не обращайте внимание на формы фасадов (дверцы, ящики), пока важен принцип Потом будем дальше думать, что и куда разместить.
Стол тоже был только такой, а надо по типу барного, с одной опорной ногой
На последней картинке 1,2 это то, где я не смогла отрисовать
Если мойку между розетками, то опять получаю рваную рабочую поверхность, вроде и место, а вроде и нет его.. ни тесто раскатать, ни котлет ни набросать.. Не.
Честно, меня розетки ни грамма не парят Обосную
- на плите я готовлю раза 4 в месяц, а именно- жарю что-то на сковороде, а по причине общесемейных проблем с желудками, это происходит краайне редко. Поэтому, если я что-то и буду жарить, то точно не на дальней комфорке.
Газ оставила потому, что это таки СОТ и бывает, что там проблемы со светом. Например, в грозу наш местный электрик приветственно вырубает общий рубильник Вообщем чисто для чайника
- заготовки или масштабные какие-то приготовления, чтобы мне нужны были сразу две комфорки я там устраивать не буду, мне проще в город смотаться
- дача это все же не дом, там все основное время на улице проводишь, поэтому никто там у стола сидеть не будет, а захочет кышну
- плескаться там особенно тоже поводов нет, по тем же причинам - дача, опыт 31 ленего пребывания, что в старом, что 2-х летнего уже когда сами хозяева, говорит, что в доме только пожрать, да поспать
- ну и, наконец, всегда есть решение - снять эти и вставить другие с IP55-65которым любые брызги по
Подскажите мне, как мне поступить в углу с верхним шкафом, не получилось у меня отрисовать в этом месте и в углу, где вводы газа и коммуникаций.Не нашлось в программе соответствющих шкафов
Не обращайте внимание на формы фасадов (дверцы, ящики), пока важен принцип Потом будем дальше думать, что и куда разместить.
Стол тоже был только такой, а надо по типу барного, с одной опорной ногой
На последней картинке 1,2 это то, где я не смогла отрисовать
Подскажите мне, как мне поступить в углу с верхним шкафом, не получилось у меня отрисовать в этом месте и в углу, где вводы газа и коммуникаций. Не нашлось в программе соответствющих шкафовМожно повесить над плитой одну большую полку и не лепить мелкую полочку сбоку.
Были в теме фотки такой установки.
Тетя Бэся, я не пойму. Вы кухню решили поженить с подоконником?
Почему? На третьей картинке видно, где кончается мебель и где начинается подоконник. В реалии расстояние будет меньше потому что в проге заложены столешки на 60
Подскажите мне, как мне поступить в углу с верхним шкафом, не получилось у меня отрисовать в этом месте и в углу, где вводы газа и коммуникацийЕще бывают вытяжки шириной 50 см, встраиваемые и невстраиваемые.
Вас что в этих шкафах над плитой напрягает то? Что один узенький получается и зубом торчит сбоку от вытяжки, а второй вылезает за «плиту»?
Можно поставить вытяжку 50, тогда будет вылезать меньше.
Почему? На третьей картинке видно, где кончается мебель и где начинается подоконник.Потому что уже вечер, я устала, внимание снизилось, посмотрела на 4-ю картинку, а на ней кажется, что подоконник сливается с кухней.
Дорого богато



Дорого-богато, по индивидуальным размерам, но выглядит бюджетненько, 75-я полка над варкой (стандартных таких не бывает, ближайший подходящий стандартный размер - 80)
реализация:

что было в проекте

фото взяла отсюда:
я бы, наверно, взяла стандартную 80, поставила бы в нее вытяжку 50, и особо не запаривалась бы, что линии фасадов верхнего ряда немного не совпадают с нижним.
У вас там дальше на картинке линии фасадов тоже не совпадают Ну и что?
Стол тоже был только такой, а надо по типу барного, с одной опорной ногойТрехногий еще можно поискать или заказать. Готовые че-та только стеклянные попадаются, а они очень на любителя вещь, потому что холодные и гремучие....

Тетя Бэся, а известна модель газовой варочной панели, которую вы будете ставить в этой кухне?
Мне все покоя не дает вопрос, почему замерщик под 45-ю духовку нарисовал 50-й столик.
Может, это из-за того, что доминошка газовая и для нее под встройку нужен более широкий стол?
Я поискала схемы встраивания газовых панелей на 2 конфорки.
В некоторых схемах просто указаны размеры выреза под варку. Никаких особых указаний по поводу ширины модуля, над которым встраивается варка, или расстояний от посадочного отверстия под варку до стенок этого модуля. Например, схема встройки к газовой варке Ханса:

В некоторых схемах указано «минимальное расстояние до стены» от выреза под варочную панель в столешнице. Что подразумевается под «стеной» (боковая стенка шкафа или стена сбоку от варки) - в этих схемах не совсем понятно. Такая схема, например, у газовой варки Сименс:

Если предположить, что на схеме имеется ввиду боковая стенка шкафа, то шкаф под такую варку внутри получается по схеме установки должен иметь ширину 470 мм. И с учетом толщины боковушек 16 мм ширина шкафа снаружи получится 502 мм. Округленно, 50 см.
Странное требование с учетом, что варка по той же схеме практически на всю толщину может сидеть в столешке, Ну вот такая мутная схема установки.
Однако, под выбранную духовку нужен шкаф 45 см.
Что можно предложить сделать:
- Проверить по схеме встраивания выбранной варки, нет ли каких-то особых требований к расстояниям до стенок модуля, в который врезается варка, и уточнить у продавцов или производителя варки минимально допустимые размеры модуля под нее.
- Если такие требования есть, то: а)- уточнить у замерщика, а каким образом он предлагает 45-ю духовку встроить в 50-й шкаф, как ее крепить к шкафу и чем закрывать дыры по бокам от духовки, ведь 50-й стол на 5 см шире того, что нужен по схеме встройки духовки.
б) Подумать над вариантом компоновки, при котором газовая доминошка не находится над электродуховкой шириной 45 см.
- Если под выбранную варку стола 45 достаточно, то выдохнуть
Да я бы лучше сама и не нарисовала.Пачули, я еще раз проверила каракули с обмерами рабочих, сравнила с некоторыми фотками, которые ты выкладывала в теме. И пришла к выводу, что у тебя вообще негодный ни для чего обмерный план.
Спасибо большое. Уже веселей у меня там ситуация?
Всем спасибо, читаю, перечитываю, примеряю и обдумываю.
По комнате в тех размерах, что сняли работяги, не сходится длина стен. По их обмерам:
Стена слева от входа в комнату - 364.
Стена справа от входа в комнату состоит из простенка 127 + окна 157 = 284.
На 80 см разница. Что-то не так записали.
Другие стены тоже не сходятся по длине. По их обмерам:
Стена, где находится вход в комнату состоит из простенка 315+ дверного проема 91 + простенка 42 = 448.
Стена, противоположная входу в комнату состоит из простенка 335 + окна 132 = 467.
На 19 см разница. Опять что-то не так записано....
По кухне - нет замеров толщины короба. И ты, и я выводили ее расчетно исходя из тех размеров, что дали работяги. И она получалась 42 см.
А теперь посмотри еще раз на фотку с коробом на кухне, которую ты нашла где-то в объявлениях о продаже:
Ты на фоте видишь что-нибудь похожее на глубину 42 см?
Я нет.
Короче, ничего по их каракулям правильно распланировать нельзя.
Придется тебе заново квартиру перемерять, рабочие что-то мощно накосячили тебе в обмерах.
Пачули, на тебе еще лучше картинку по иероглифам строителей и твоим сообщениям в теме.
Тут красными отметками «нр» помечено, какие размеры неразборчиво написаны в их почеркушках, и я могла неправильно их прочесть, или по поводу которых есть сомнения, куда они относятся (например, насчет пары размеров в санузле непонятки).
И помечено синим с припиской «р» или вопросительными знаками, чего в их обмерах не было, но можно попытаться посчитать.
Т. е. как тебе прога и посчитала, сужающийся после поворота.
По комнате, как я уже писала выше, почему-то не сходится длина стен. Стены с окнами получаются длиннее, чем параллельные им стены без окон. Как будто окно на 20 см с каждой стороны выпирает за контур здания, что и отображено на картинке - окно комнаты не стыкуется со стенами, выехало за их границы. Черт его знает, почему у них так получилось в обмерах... Может, им «мозгов» хватило померить расстояние от стены до стекол окон, может, они так ниши под батареи померили, может, это угловое окно и правда в какой-то нише.
Моя не понимайт, почему в комнате длина стен не сходится так сильно. В пределах 5 см - можно было бы предположить кривизну постройки и погрешности измерения. А когда по 20 см разница вылезает, это такими погрешностями не объяснишь.
Еще некоторые размеры подозрительно совпадают до сантиметра с размерами, указанными в плане этажа (наверно, проектного?), который ты выкладывала (я кусок из нее в правом углу картинки разместила).
Например, длина коридора 299, длина комнаты 248 и длина кухни 274.
На стройке не бывает, чтоб построили точно по проекту, и чтоб замеры с проектом совпадали. Мне кажется, часть размеров рабочие вообще не мерили, а взяли из плана этажа...
Еще когда сможешь вернуться к планированию квартиры, обрати внимание, что на плане этажа на стене санузла напротив входа и на стене комнаты напротив входа изображены какие-то небольшие уступы.
Их в замерах рабочих нет, и этот план этажа - единственная картинка, из тех, что ты выкладывала, на которых обозначены какие-то уступы.
Ну, и в целом, обмеры их неполные. Короба в санузле и на кухне не обмерили, все простенки, уступы, ниши - тоже нет... Где электрощиток и выводы воды - непонятненько. Толщина стен, высота подоконников, размеры ниш под подоконник - тоже могут быть нужны при планировании.
В общем, тут план с размерами еще дополнять и дополнять, поправлять и поправлять, прежде, чем расстановку мебели планировать и про перепланировку думать. Еще я подписала на плане твои хотелки и доп. инфу, которая была в твоих сообщениях. Чтоб не шарахаться по всей теме в поисках и 100 раз не пересказывать одно и тоже. Ну, и на случай, если пойдешь по всяким стройфорумам креатива искать.
Но вообще, идти пока не с чем. План неполный и не очень достоверный получается.
Из твоих ответов я не помню и не нашла размеры кровати, которую надо впихнуть в комнату (помню, что длина 2,2, ширину не помню), И не нашла сообщение, в котором ты вроде бы писала, что тебе застройщик ответил, что в ваших недоевропах кухню в комнату переносить можно.
А еще я поразглядывала план этажа, фотку с фасадом дома, попыталась найти на фотке твои окна, где ты их описывала в теме, и мне показалось, что, возможно, самый лучший угол для кровати или дивана кровати в комнате - это тот, в котором на планах застройщика изображен диван. Т. е. угол, образованной стеной санузла и стеной с окном.
Почему мне так показалось? Потому что дом не прямой, а ступеньками. Этот угол кажется наименее просматриваемым из окон квартиры в следующей секции.
Хотя, возможно, я ошибаюсь. И не им будет лучше видно, что у тебя в квартире делается, а тебе будет удобней в полевой бинокль разглядывать, что у них....
В сухом остатке - если вы с мужем не хотите, чтобы ближайшим соседям была видна в окна ваша кровать, лучше обратить внимание на вид из ваших окон на квартиры соседей, и соответственно, вид из окон соседей на вашу квартиру. И этот нюанс при расстановке мебели учитывать.
Также по плану этажа кажется, что у тебя есть возможность совместно с соседом из однушки самозахватить кусок общего межквартирного холла. Например, поставить металлическую решетку или металлическую дверь, отгородив общий «тамбур» на две квартиры.
А есть ли такая возможность на самом деле и стоит ли овчинка выделки - это нужен более подробный план с размерами межквартирного холла в вашем с соседом крыле. Но особо на межквартирный холл лучше не рассчитывать. Неизвестно, какой сосед попадется из однушки, может, он не захочет учавстовать в самозахвате. И слишком много квартир на площадке. А чем больше соседей на площадке, тем больше шансов, что среди них окажутся те, кому не понравится, что кому-то повезло больше, чем ему, и у кого-то есть возможность что-то прихапать от межквартирного холла.
Ну и вообще. С учетом пчеловейности дома, может, не надо тебе сильно в ремонт этой однухи вкладываться. Ее, может, лучше побюджетней отремонтировать и подкопить денег на обмен на что-нибудь еще лучше. Или отремонтировать под сдачу. Или вообще не ремонтировать, подождать, пока ценник подрастет, и поменять на что-нибудь поинтересней.
Уж очень пчеловейный пчеловейник, пардон, что огорчаю.
Высотный многосекционный дом, видно 7 или 8 квартир на площадке, из них, как минимум, 4 малогабаритные однухи и одна не очень большая двушка-линейка.
План этажа как бы намекает, что среди соседей по дому может быть много проблемных, не склонных к тому, чтобы осесть в этом доме надолго.
Еще раз желаю тебе полегче пережить тяжелый жизненный момент и скорейшего получения ключей.
А когда будет нормальный обмерный план, можно посочинять варианты расстановки мебели с большой перепланировкой и без нее.
Вот, например, схематично с гардеробной-кладовой 2х1,4 метра (по объемам хранения эквивалентна примерно шкафу-купе длиной 2,8 метра + шкафчику помельче 0,8 метра), большим санузлом с большой душевой, кухней чуть-чуть длиннее, маленькой грязной зоной справа от входа, без поворотов на пути в санузел, купешкой в комнате, но комната пострадает.
Тяжелый, тяжелый санузел. Не впихуется душевая кабина 100х100. Совсем не впихуется... Впихуется тоолько большое, что с перепланировкой, что без. Длинные широкие ванны, угловые джакузи, душевые с сидушками в строительном исполнении и тд. и т. п.
Для разных перекраиваний изначальная планировка вообще кажется очень годной. Тут разного накреативить можно, и простого, и сложного в исполнении. Даже мастер-бедрум, правда, в однухе он не нать. Была бы треха или четыреха - мастер-бедрум был бы в тему.

Тут красными отметками «нр» помечено, какие размеры неразборчиво написаны в их почеркушках, и я могла неправильно их прочесть, или по поводу которых есть сомнения, куда они относятся (например, насчет пары размеров в санузле непонятки).
И помечено синим с припиской «р» или вопросительными знаками, чего в их обмерах не было, но можно попытаться посчитать.
Ширину коридора после поворота, например, посчитать нормально невозможно, т. к. неизвестна толщина перегородок, и с размерами комнаты что-то странное и непонятное. Если предположить, что стены без окон в комнате измерены правильно, и что на кухне и в комнате стены из одного материала и одинаковой толщины, то коридор получается после поворота шириной около 139 см.
Т. е. как тебе прога и посчитала, сужающийся после поворота.
По комнате, как я уже писала выше, почему-то не сходится длина стен. Стены с окнами получаются длиннее, чем параллельные им стены без окон. Как будто окно на 20 см с каждой стороны выпирает за контур здания, что и отображено на картинке - окно комнаты не стыкуется со стенами, выехало за их границы. Черт его знает, почему у них так получилось в обмерах... Может, им «мозгов» хватило померить расстояние от стены до стекол окон, может, они так ниши под батареи померили, может, это угловое окно и правда в какой-то нише.
Моя не понимайт, почему в комнате длина стен не сходится так сильно. В пределах 5 см - можно было бы предположить кривизну постройки и погрешности измерения. А когда по 20 см разница вылезает, это такими погрешностями не объяснишь.
Еще некоторые размеры подозрительно совпадают до сантиметра с размерами, указанными в плане этажа (наверно, проектного?), который ты выкладывала (я кусок из нее в правом углу картинки разместила).
Например, длина коридора 299, длина комнаты 248 и длина кухни 274.
На стройке не бывает, чтоб построили точно по проекту, и чтоб замеры с проектом совпадали. Мне кажется, часть размеров рабочие вообще не мерили, а взяли из плана этажа...
Еще когда сможешь вернуться к планированию квартиры, обрати внимание, что на плане этажа на стене санузла напротив входа и на стене комнаты напротив входа изображены какие-то небольшие уступы.
Их в замерах рабочих нет, и этот план этажа - единственная картинка, из тех, что ты выкладывала, на которых обозначены какие-то уступы.
Ну, и в целом, обмеры их неполные. Короба в санузле и на кухне не обмерили, все простенки, уступы, ниши - тоже нет... Где электрощиток и выводы воды - непонятненько. Толщина стен, высота подоконников, размеры ниш под подоконник - тоже могут быть нужны при планировании.
В общем, тут план с размерами еще дополнять и дополнять, поправлять и поправлять, прежде, чем расстановку мебели планировать и про перепланировку думать.
Но вообще, идти пока не с чем. План неполный и не очень достоверный получается.
Из твоих ответов я не помню и не нашла размеры кровати, которую надо впихнуть в комнату (помню, что длина 2,2, ширину не помню), И не нашла сообщение, в котором ты вроде бы писала, что тебе застройщик ответил, что в ваших недоевропах кухню в комнату переносить можно.
А еще я поразглядывала план этажа, фотку с фасадом дома, попыталась найти на фотке твои окна, где ты их описывала в теме, и мне показалось, что, возможно, самый лучший угол для кровати или дивана кровати в комнате - это тот, в котором на планах застройщика изображен диван. Т. е. угол, образованной стеной санузла и стеной с окном.
Почему мне так показалось? Потому что дом не прямой, а ступеньками. Этот угол кажется наименее просматриваемым из окон квартиры в следующей секции.
Хотя, возможно, я ошибаюсь. И не им будет лучше видно, что у тебя в квартире делается, а тебе будет удобней в полевой бинокль разглядывать, что у них....
В сухом остатке - если вы с мужем не хотите, чтобы ближайшим соседям была видна в окна ваша кровать, лучше обратить внимание на вид из ваших окон на квартиры соседей, и соответственно, вид из окон соседей на вашу квартиру. И этот нюанс при расстановке мебели учитывать.
Также по плану этажа кажется, что у тебя есть возможность совместно с соседом из однушки самозахватить кусок общего межквартирного холла. Например, поставить металлическую решетку или металлическую дверь, отгородив общий «тамбур» на две квартиры.

А есть ли такая возможность на самом деле и стоит ли овчинка выделки - это нужен более подробный план с размерами межквартирного холла в вашем с соседом крыле. Но особо на межквартирный холл лучше не рассчитывать. Неизвестно, какой сосед попадется из однушки, может, он не захочет учавстовать в самозахвате. И слишком много квартир на площадке. А чем больше соседей на площадке, тем больше шансов, что среди них окажутся те, кому не понравится, что кому-то повезло больше, чем ему, и у кого-то есть возможность что-то прихапать от межквартирного холла.
Ну и вообще. С учетом пчеловейности дома, может, не надо тебе сильно в ремонт этой однухи вкладываться. Ее, может, лучше побюджетней отремонтировать и подкопить денег на обмен на что-нибудь еще лучше. Или отремонтировать под сдачу. Или вообще не ремонтировать, подождать, пока ценник подрастет, и поменять на что-нибудь поинтересней.
Уж очень пчеловейный пчеловейник, пардон, что огорчаю.
Высотный многосекционный дом, видно 7 или 8 квартир на площадке, из них, как минимум, 4 малогабаритные однухи и одна не очень большая двушка-линейка.
План этажа как бы намекает, что среди соседей по дому может быть много проблемных, не склонных к тому, чтобы осесть в этом доме надолго.
Еще раз желаю тебе полегче пережить тяжелый жизненный момент и скорейшего получения ключей.
А когда будет нормальный обмерный план, можно посочинять варианты расстановки мебели с большой перепланировкой и без нее.
Вот, например, схематично с гардеробной-кладовой 2х1,4 метра (по объемам хранения эквивалентна примерно шкафу-купе длиной 2,8 метра + шкафчику помельче 0,8 метра), большим санузлом с большой душевой, кухней чуть-чуть длиннее, маленькой грязной зоной справа от входа, без поворотов на пути в санузел, купешкой в комнате, но комната пострадает.
[

Для разных перекраиваний изначальная планировка вообще кажется очень годной. Тут разного накреативить можно, и простого, и сложного в исполнении. Даже мастер-бедрум, правда, в однухе он не нать. Была бы треха или четыреха - мастер-бедрум был бы в тему.
Вот, например, схематично с гардеробной-кладовой 2х1,4 метра (по объемам хранения эквивалентна примерно шкафу-купе длиной 2,8 метра + шкафчику помельче 0,8 метра), большим санузлом с большой душевой, кухней чуть-чуть длиннее, маленькой грязной зоной справа от входа, без поворотов на пути в санузел, купешкой в комнате, но комната пострадает.Очень и очень интересно.[
Понравилось, что даже так можно накрутить.
Спасибо.
Идея имеет место быть :-).
Твои кухня и комната почти без перепланировки.
Впихнула даже «очень нужное» кресло. Как с него телек смотреть - это, конечно, вопрос. И куда кровать девать в случае приема гостей, если это не диван-кровать - это тоже большой вопрос.
Но как обозначен был «необходимый» для комнаты набор - так и отрисовано. Тумбочка прикроватная одна из-за кресла не поместилась. Вместо комода модули поуже вдоль стены. Но для попугая место нашлось, я считаю, зачетное.
С таким планом расстановки что в лоб, что по лбу, с какой стороны свободного угла в комнате дверь. Она одинаково от него место отъедает. Я нарисовала с переносом, чтобы из комнаты в санузел поближе. Без переноса выйдет примерно тоже самое.
Также видно, что комната не сильно пострадает если сдвинуть перегородку между кухней и комнатой.
Уменьшитя проход между диваном и мелкими модулями напротив него. Но там метровый проход получается. Ну, хорошо с отделкой 95... )))
И в принципе, эта расстановка мебели по комнате в одном шаге от скоса угла комнаты или от урезания части комнаты в пользу коридора.
А, да, насчет кухни. Ну, я с тобой почти согласна. Ладно, пусть подстолье под мойку будет не 80, а 75, если духовку ставить под варку. Для красивости. ))))
И чтоб не усложнять конструкцию стола возле холодильника, и холодильнику чтоб было не жарко...
А если не боишься духовку рядом с холодильником, то тогда ящики ведь можно и очень здоровые ящики сделать.
И еще, объективно, в этой планировке сватаемый тут к месту и не к месту нестандартный размер столешницы и нестандартная глубина модулей только все поганит.
Могли бы холодильник подвинуть поближе к венткоробу, чтобы возле входа не маячил высокий громоздкий айсберг. Так нет же... Не можем, потому что из-за этой хрени 70-й получается никакущее расстояние между холодилтником и мойкой.

Но как обозначен был «необходимый» для комнаты набор - так и отрисовано. Тумбочка прикроватная одна из-за кресла не поместилась. Вместо комода модули поуже вдоль стены. Но для попугая место нашлось, я считаю, зачетное.
С таким планом расстановки что в лоб, что по лбу, с какой стороны свободного угла в комнате дверь. Она одинаково от него место отъедает. Я нарисовала с переносом, чтобы из комнаты в санузел поближе. Без переноса выйдет примерно тоже самое.
Также видно, что комната не сильно пострадает если сдвинуть перегородку между кухней и комнатой.
Уменьшитя проход между диваном и мелкими модулями напротив него. Но там метровый проход получается. Ну, хорошо с отделкой 95... )))
И в принципе, эта расстановка мебели по комнате в одном шаге от скоса угла комнаты или от урезания части комнаты в пользу коридора.
А, да, насчет кухни. Ну, я с тобой почти согласна. Ладно, пусть подстолье под мойку будет не 80, а 75, если духовку ставить под варку. Для красивости. ))))
И чтоб не усложнять конструкцию стола возле холодильника, и холодильнику чтоб было не жарко...
А если не боишься духовку рядом с холодильником, то тогда ящики ведь можно и очень здоровые ящики сделать.
И еще, объективно, в этой планировке сватаемый тут к месту и не к месту нестандартный размер столешницы и нестандартная глубина модулей только все поганит.
Могли бы холодильник подвинуть поближе к венткоробу, чтобы возле входа не маячил высокий громоздкий айсберг. Так нет же... Не можем, потому что из-за этой хрени 70-й получается никакущее расстояние между холодилтником и мойкой.
Кстати, вчера мыла холодильник. Именно холодильную камеру. И обратила внимание, что для вытаскивания верхней полочки (её же вверх не сильно поднимешь) мне пришлось освобождать подоконник, чтобы дверцу открыть максимально возможно: мешают полочки на двери, да и сама дверь мешает поставить верхнюю полочку. Но у меня от холодильника до стены 25см примерно, плюс ещё см 20 подоконник. Мне хватило, чтобы не выдвигать холодильник. Холодильник Атлант. Для морозилки столько места не надо. Там достаточно чуть шире, чем на 90 градусов распахнуть и ящики вынимаются прекрасно.
Пачули_ t123, смотри. Берем план расстановки на последней картинке, и рисуем поверх него несколько линий.
Тынц три сиреневых линии. Подрезали комнату на 20 см, в пользу коридора, получилась ниша в комнате:
И чо, прям офигеть как что-то в комнате от этого плохеет?
Тынц. Две сиреневые линии. Вход в комнату на прежнем месте, под шкафы образовалась неглубокая ниша:
Так, мне кажется, похуже, чем на предыдущей картинке, т. к. на пути движения в комнату здоровый шкаф, а не мелкие низенькие модули. А я очень не люблю, когда что-то большое и высокое торчит углами на линии движения. Но зато проем в комнату вообще без изменений, а то тут люди же переживают, что ты, не дай бог, двигая стены, слишком большой шкаф в коридоре в итоге вкорячишь. ))))
Да и шкаф покороче, а рядом с ним что-то пониже ведь тоже можно поставить.
Тынц. Две сиреневые линии. Срезали угол:
Тынц. Или вообще одна сиреневая линя, срезающая угол:
Со скошенным углом вырисовывается какая-то нестандартная мебель возле двери, дверь в комнату с открыванием наружу а не внутрь. Да, это минусы. Но зато на горшок что от входа, что из кухни, что из комнаты - не огибая внешний угол, в прихожей можешь плясать, встречая и провожая гостейи, и по стене в прихожке можно профигачить шкафы или купе переменной глубины.
А скажи-ка. Как там у тебя дела с пальцами? Они целы? ) И как тебе вообще холодильник в углу? не желаешь переставить куда-нибудь в центр кухни или к входу?
Тынц три сиреневых линии. Подрезали комнату на 20 см, в пользу коридора, получилась ниша в комнате:

Тынц. Две сиреневые линии. Вход в комнату на прежнем месте, под шкафы образовалась неглубокая ниша:

Да и шкаф покороче, а рядом с ним что-то пониже ведь тоже можно поставить.
Тынц. Две сиреневые линии. Срезали угол:


Кстати, вчера мыла холодильник. Именно холодильную камеру. И обратила внимание, что для вытаскивания верхней полочки (её же вверх не сильно поднимешь) мне пришлось освобождать подоконник, чтобы дверцу открыть максимально возможно: мешают полочки на двери, да и сама дверь мешает поставить верхнюю полочку. Но у меня от холодильника до стены 25см примерно, плюс ещё см 20 подоконник. Мне хватило, чтобы не выдвигать холодильник. Холодильник Атлант. Для морозилки столько места не надо. Там достаточно чуть шире, чем на 90 градусов распахнуть и ящики вынимаются прекрасно.Анчик, тут было мнение, что холодильник в углу - самое ужасное расположение, и что пальцы будут при открытии отбиваться.
А скажи-ка. Как там у тебя дела с пальцами? Они целы? ) И как тебе вообще холодильник в углу? не желаешь переставить куда-нибудь в центр кухни или к входу?
, тут было мнение, что холодильник в углу - самое ужасное расположение, и что пальцы будут при открытии отбиваться.уже давно проехали. Нравится к стене открывать и съедать драгоценное место, так кто ж вам мешает то. Это было моё мнение и никому его не навязываю. Понятно?
А скажи-ка. Как там у тебя дела с пальцами? Они целы? ) И как тебе вообще холодильник в углу? не желаешь переставить куда-нибудь в центр кухни или к входу?У меня он же в тёплом углу, поэтому от стены до холодильника см 25 примерно. Ну и потом ещё окно в см 20. Сложно прищемить пальцы при таком расположении. Переставить не желаю, т. к. наше расположение сейчас удобно. Но вот в другой угол переставлять точно не хочу - там я не смогу так открыть холодильник, чтобы помыть. Хотя мыла первый раз за 17 лет. Обычно, если где что накапали/натекло, вытираем сразу. А тут меня достало, что на задней стенке уже от пыли чернота появилась - он же капельный, там как раз оседает влага с пылью. Ну вот и вымыла. А добраться до задней стенки можно нормально, вынув полки.
Кстати, у свекрови холодильник стоит при входе на кухню. Но у неё другая планировка квартиры. И в их конкретном случае - это довольно удобно. Но!!! При открытии холодильника приходится ловить дверцу. Он, как и положено, стоит чуть наклоном в сторону задней стенки. У меня дверцу при максимальном открытии держит то, что стоит на подоконнике, ну окно в крайнем случае придержит. А у неё дверцу холодильника не ограничивает ничего и она начинает стремиться к боковой стенке холодильника с ускорением. Вот ловим, когда много достаём из холодильника. Ну либо можно задействовать какого-нибудь члена семьи. Т. е. это тоже такое вот Но ощутимое.
было мнение, что холодильник в углу - самое ужасное расположениеНу да, чтоб открыть пошире дверцу, нужно разобрать подоконник, вытащить холодильник и т. д. Но за то на рисунке красиво смотрится.
Идея имеет место быть :-).На тебе еще почти без перепланировки изображение идеи, по поводу которой тут были споры, получится купе во всю стену 3,64 метра или не получится.
Возможно, получится, но точно во всю стену одной и той же глубины он не будет. Ближе к двери придется уменьшить глубину примерно до 42-54 см (если, конечно, предположить, что хотя бы стены без окон рабочие померили верно). И соответственно, в этой части дверцы сделать распашные на пивотах (фотки таких шкафов были в теме, глубокая часть шкафа со сдвижными дверями, мелкая - с распашными).
И дверь будет открываться на шкаф.
Длина одного простенка у двери в комнату 42 см. Длина второго со стороны коридора неизвестна. Толщина перегородок неизвестна. Если предположить, что перегородки толщиной 10 см, то длина второго простенка со стороны коридора получается 31 см. Соответственно, если подвинуть дверь в комнату, то к простенку 42 см можно добавить еще примерно 19 см. Получится 61. Но все 61 см шкафом не занять. Потому что это черновой размер. Минус штукатурка, минус наличник, минус маленький отступ от наличника, и больше 54 см никак... Это если перегородка между кухней и коридором не толщиной в 25 см. )))) А если она такая жирная, как ты на фото показывала кирпичную кладку со здоровенной штрабой, и утверждала, что это и есть перегородка между кухней и коридором, то там двигать особо нечего.
Ну и потом. На открывание двери на угол больше 90 надо ведь чуть-чуть места оставить.

Ну да, чтоб открыть пошире дверцу, нужно разобрать подоконник, вытащить холодильник и т. д. Но за то на рисунке красиво смотрится.Чтоб открыть пошире дверцу для чего? Чтобы при помывке холодильника вынуть полки из него? ))))
И как часто моется холодильник?
И причем тут «на рисунке красиво смотрится»? До вас правда не доходит, что многим людям не нравятся крупногабаритные предметы на пути движения, и что не всем приятно входить в кухню, как в узкий тоннель, или вы так талантливо притворяетесь?
Тут в теме, между прочим, были люди, которые писали, что специально батарею отопления переносили, чтобы холодильник поставить в угол у окна. А могли ведь, наверно, воткнуть у входа.
В хрущевках люди вообще в результате перепланировок ниши под холодильники делают, лишь бы айсберг здоровый с пути в кухню убрать. Наитипичнейшее для хрущевок решение, в теме несколько видосов было с кухнями, в которых холодильник утопили в нишу.
Хотя в нише расположение вообще-то еще более замороченное, чем в углу. Задвинуть холодильник в нишу легко. А вот вынуть потом его оттуда не так то просто. )))
Я однажды рисовала план перепланировки двушки-хрущевки для супружеской пары. У них в неперепланированном варианте квартиры холодильник иначе не вставал, как прямо у входа в кухню. Им это настолько не нравилось, что в своей неперепланированной квартире они холодильник переставили в комнату.
И планов перепланировки им понравилось два. Оба с холодильником не на пути движения в рабочую зону кухни и не на повороте. Особенно супруга радовалась, так он ее на входе в кухню выбешивал.
Он, как и положено, стоит чуть наклоном в сторону задней стенки.
Анчик, многие современные холодильники положено ставить по уровню. А не по уровню с небольшим наклоном назад ставят, чтобы дверца назад сама захлопывалась, если владелец забудет закрыть. Но... Многие холодосы сейчас снабжаются пищалками-визжалками-напоминалками о незакрытой дверце. Мой вирпул верещит, что ему жарко, даже если возле него раскрытого подольше задержаться в задумчивости, а что бы такое скушать.
Требует: «Давай, соображай быстрей. Закрой меня скорей, из меня холод улетучивается!»
И еще некоторые мастера по ремонту холодильников говорят, что при сильном наклоне холодильника назад хладагент может неравномерно распределяться в испарителе холодильника и холодильник будет хуже морозить.
Дебаты на холодильник ру с продаванами о том, как должен быть установлен холодильник:
Пачули очень в тему, она ведь Бош выбирает.
Цитата из дебатов:
... Фирма BOSCH утверждает что их холодильники надо устанавливать по уровню, т. к. компресор должен стоять ровно. Все четыре амортизатора компресора одинаковые. И если холодильник стоит с наклоном, то компресор с одной стороны давит сильней на амортизаторы и из-за этого холодильник громче работает. Так же с большинством холодильников большинства других производителей.А встраиваемые холодильники вообще без всяких наклонов ставят. Представьте пенал здоровый со встройкой, стоящий под наклоном. Вы где-нибудь, у знакомых или в мебельных салонах видели такое?
Хотя встречаются такие которые требуют наклона. А чтобы дверцы закрывались самопроизвольно обычно ставятся доводчики.
Но за то на рисунке красиво смотрится.Не задумывались, почему в не очень больших кухнях, да и в больших тоже, владельцы так часто стремятся убрать холодильник с поворота в рабочую зону кухни, и почему холодильник в углу вообще довольно популярное решение?


Как мне этот вариант нравится! Но такой высокий холодильник я поставить не могу - из стены выходит толстенная бщая газовая труба, а под ней умещается только маленький Саратов высотой 114 см, да и то пришлось чуть подрихтовать ему угол верхней панельки; а на месте чайника у меня дверь в ванную комнату, открывающаяся наружу (да, есть такие проекты хрущёвок!). Плита и раковина у меня поменяны местами, на холодильнике живёт телевизор, противоположную стену занимает диванчик, между ним и окном стол.![]()
КроНа, мне не все в нем нравится, но почему они поставили холодильник в угол, почему на внутреннем и внешнем углу радиусы - это моя хорошо понимайт. Дело не в красивой картинке, хотя и в ней тоже, визуально кухня кажется больше и легче, чем если бы холодильник стоял на входе.
Дело в том, что многие модели холодильников по инструкции не должны устанавливаться вплотную к стене, что мы и видимо на фото. Они немного, на толщину дверцы, будут выступать в кухню. Т. е. холодильник у входа скушает от ширины кухни больше. В небольших кухня это «немного на толщину дверцы» может очень даже ощущаться.
Кроме того, холодос высокий. А самая широкая часть тела у человека нормального телосложения - плечи. Для прохода между низким предметом и стеной человеку надо меньше места, чем между высоким предметом и стеной. Поэтому когда на входе, еще и на повороте стоит что-то высокое, а вход в кухню итак не шибко широкий, проход становится реально тесней.
Но я пока ничего не могу сочинить с Пачулиной кухней, чтобы не ставить холодос на повороте.
Дело в том, что многие модели холодильников по инструкции не должны устанавливаться вплотную к стене, что мы и видимо на фото. Они немного, на толщину дверцы, будут выступать в кухню. Т. е. холодильник у входа скушает от ширины кухни больше. В небольших кухня это «немного на толщину дверцы» может очень даже ощущаться.
Кроме того, холодос высокий. А самая широкая часть тела у человека нормального телосложения - плечи. Для прохода между низким предметом и стеной человеку надо меньше места, чем между высоким предметом и стеной. Поэтому когда на входе, еще и на повороте стоит что-то высокое, а вход в кухню итак не шибко широкий, проход становится реально тесней.
Но я пока ничего не могу сочинить с Пачулиной кухней, чтобы не ставить холодос на повороте.
Интересное в разделе «Ремонт и меблировка жилья»









Новое на сайте














