Это плохой для рисовалок кухни план, ни размеров, ни указания, где стояки и венткороба.Пока не получается найти, но поищу ещё. Но венткороба у нас, скорее всего, в перегородке между кухней и кладовкой. Стояк для отопления в углу, напротив двери.
Мебель для кухни (страница 134)
lira70
План этажа с указанием несущих стен.
Стенка между кухней и комнатой несущая. Стенка между кухней и кладовкой (?) не несущая, можно двигать.

Стенка между кухней и комнатой несущая. Стенка между кухней и кладовкой (?) не несущая, можно двигать.
Стенка между кухней и кладовкой (?)Там как раз вент. короба идут И у нас 8-й этаж из 10. Кстати, у нас чуть ли не во всех квартирах посносили угол большой комнаты напротив входной двери.
Полезла смотреть фотки кухонь в 121 серии.
И тут бац больно прям по глазам! И как это теперь развидеть?
И тут бац больно прям по глазам! И как это теперь развидеть?

renard, какой ужас! Как в этом жить?!
Кстати, у нас чуть ли не во всех квартирах посносили угол большой комнаты напротив входной двери.«Архитекторы» тоже покушаются на эту стену:
И как это теперь развидеть?в чего здесь выдающегося? обычная кухня. Посуду или сто то мыть не удобно. Спина устанет Нет опоры. Я лбом об шкаПчики упираюсь, сразу спина разгружается
в чего здесь выдающегося?Срач...
Срач...не ожидал от вас такой впечатлительности!
там и
но полочка за раковиной пугает....
Срач...Ооо, тогда вы настоящего с.. ча не видели. Здесь ничего выдающегося нет.
Я на мебель и планировку смотрю. Остальное я не вижу
это творческий беспорядок, вобщемИ плохо доступные ниши. И 4 фасада со стеклом, за которым видно совсем не какую-нибудь красивенькую посуду.
Вот посмотрите и подумайте, а хорошо ли это, фасады со стеклом в рабочей зоне, придают ли они на самом деле кухне ожидаемой «легкости», и не надо ли попытаться что-то изменить в верхнем ряду вашей новой старой кухни.
В небольшой рабочей зоне фасады со стеклом - зло. ИМХО.
Если стекло прозрачное - на полках будет видно срач, потому что в рабочей зоне на полках нужнее не красивенько расставленная посуда и баночки, а совсем другие предметы.
Если стекло матовое - все равно будут контуры просвечивать.
А если как OlgaGera писала, подобрать стекло «правильное», через которое вообще не видно, то оно бессмысленно, потому что выполняет роль глухого фасада.
вот если найду, где докупить глухие фасады к своей кухне, или соберусь поменять все фасады, то истреблю все стекляшки в рабочей зоне, кроме стекляшки в радиусной полке. Там ладно, пусть будет одно стеклышко. Там у меня действительно красивенькое стоит. Чайный сервиз и дежурные рюмки прижились.
Немножко не так. 30, 40, 45, 60, 80, 100 угловое прямоугольное подстолье. Такое бывает у всех производителей, за редкими исключениями типа ИКЕА. У ИКЕА свои размерымы немного о разном. Я писала о том, что ЭКОНОМИЛА НА ВСЕМ. Поэтому рассматривала самую дешевую мебель и, соответственно, указала размеры ее комплектации. Не бывает там шкафов на 30. Бывают трапецевидные угловые шкафы с углом 80, 85 или 90 см. От фабрики зависит.
Поэтому и приписала в конце. Что хотите сэкономить - обращайтесь. Полагаю, что не всем это надо.
В небольшой рабочей зоне фасады со стеклом - зло. ИМХО.полностью согласна
renard, у меня вся посуда в ходу. Я часто меняю. Перестала уже хранить красивенькое. Я им пользуюсь. И так приятно Праздник каждый день
Не бывает там шкафов на 30.Бывают.
Заходим в рисовалку фабрики, которая делает кухни эконом-класса:
Выбираем самые дешевые фасады из МДФ-рамки или из ЛДСП. И в модулях находим 30-ки.
Мерленовские кухни тоже нельзя назвать супер-дорогими. Хотя у них там есть парочка моделей с фасадами из массива. На противоположные вкусы, одна темно-коричневая, одна бежевая.
И в мерленовских кухнях с фасадами подешевле тоже есть 30-ка, правда, с фасадом только в виде дверцы, с ящиками такую мелочь они не делают. Самый дешевый фасад 30-ка из ЛДСП стоит в Мерлене 358 рублев.
renard, у меня вся посуда в ходу.У меня тоже нет разделения на «парадную» и «повседневную» посуду. Но на двоих гора посуды не нужна. Нам вполне достаточно того, что помещается в 50-ю сушку. Остальное стоит, ждет гостей. Хотя выглядит также, как та посуда, из которой мы едим каждый день. И стоит оно вовсе не в полках со стеклом. Потому что в этих полках в рабочей зоне нужней и удобней совсем другие вещи.
В общем, я считаю, что 13 лет назад в своей кухне с верхним рядом ошиблась.
Не надо было ставить фасады со стеклом в рабочей зоне. Они только в проекте и в мечтах красиво выглядят. В реальности получается хрень и бесполезная трата денег на более дорогой фасад.
И не надо было делать полку 30 + сушку 50, надо было сделать либо тупо составной корпус из двух полок, либо нестандартный с двумя отделениями под сушку и полки, и с фасадами 40+40.
Больше я так и себе не сделаю, и никому не нарисую. Разве что в виде исключения, как для Сенс-а.
Тюю!renard, какой ужас! Как в этом жить?!Срач...
Я на мебель и планировку смотрю.Вот!
И тут бацМоё любимое расположение раковины.
Тетя Бэся, поздновато Вы... Сначала планируют кухню, потом под нее делают коммуникацииНормально! У меня ж только вводы сделаны При желании все можно повернуть-развернуть, почти все)))
Пока не получается найти, но поищу ещё.
«Архитекторы» тоже покушаются на эту стену:У «архитекторов» обмерный план почти годный. Можно взять их чертеж и подписать свои размеры:

На их плане не хватает указания, как расположена батарея и стояк отопления, газовый стояк, газовый счетчик, стояки ХВС, ГВС, канализации.
Я на плане «архитекторов» вижу только канализационный стояк в углу в кладовке, но это явно схематичное изображение, не отражающее реальность. Потому что по строительным правилам, канализационный стояк не может быть расположен так, как там изображено, т. е. вплотную к венткоробу и несущей стене. 7-8 см должно быть между стеной и этим стояком, венткоробом и стояком. Со всеми отводами и раструбами этот стояк может кушать квадрат в углу кладовки размером примерно 20х20 см.
Еще, если использовать план «архитекторов» лучше уточнить по месту, действительно ли между венткоробом и кухней находится кусок толстой, видимо, несущей стены, толщиной 210 мм. Или это у них ошибка, и в реальности эту стенку можно снести полностью, добавив таким образом еще 20 см к длине для установки кухни.
Также для планировки кухни могут быть важны высота, глубина, вынос и заходящие на стену «ушки» подоконника, если вы не собираетесь менять подоконник.
В вашем случае, если кухня такая же, как у «ахритекторов» на плане, т. е. с одним широким, и одним очень узким простенком у окна, еще может быть важен угол рассвета откосов, за счет уменьшения угла рассвета узкий простенок можно немного увеличить.
В целом же, если у кухни такая же длина, как на плане «архитекторов», 3180 мм, то в нее и без перепланировки и присоединения кладовки к кухне все влезет в линию. Правда, плита может получиться близковато к окну.
Я прикинула, в линию получилось примерно так, если не помешает газовый стояк:
10 см на зазор между холодильником и стеной, в зазоре можно проложить канализационную и водопроводные трубы + 60 холодильник + 40 стол с ящиками + 60 мойка + 45 ПММ + 15 бутылочница, нужная только для того, чтобы не ставить ПММ рядом с духовкой + 60 духовка, варка или плита + 15 еще одна нахрен не нужная бутылочница = 310 см.
8 см запас на то-на се, на отделку и на разницу в ваших и их обмерах на зазоры для установки плиты, если плита будет невстраиваемая, и т. д. и т. п. Большой запас - не маленький, его к модулям приплюсовать можно. Из минусов - варка близко к окну, кривая канализационная трасса, которую в случае засора не очень удобно разбирать, т. к. труба идет за холодильником.
Конечно, возможны и другие варианты. Например, духовку выкинуть в другой угол кухни, а под варкой устроить ящики. Тогда дурацкие бутылочницы не нать и ПММ 60 по всем правилам установки.
В конце кухни можно не бутылочницу воткнуть, а какой-то скошенный модуль, как у архитекторов на плане, если окно оказывается ниже столешки кухни и прямой модуль будет перекрывать окно и мешать его открывать.
Или холодильник в тот угол, тогда канализационная трасса не кривая получится.
там и пальма в кадке живое растение, иконки на полочке.... это творческий беспорядок, вобщемПо факту рабочей поверхности для готовки всего 45см...
но полочка за раковиной пугает....А я бы не стала делать такой подиум, он съедает слишком много места, лучше повесить угловую полочку для мелочи (там вроде баночки со специями стоят), а на нижнем ярусе можно держать что-то более крупное.
Вытяжку устанавливать передумали? Тоже место пропадает.
По факту рабочей поверхности для готовки всего 45см...Если срач убрать, то рабочая поверхность - 80 между мойкой и плитой. А если бы использовали не «пентагон», который для маленьких кухонь не очень подходит, а прямоугольное угловое подстолье, или Г-образное подстолье под мойку, то между мойкой и плитой получилось бы не 80, а 110 см. еще бы и угол сбоку от мойки можно было бы задействовать не под пугающую людей полочку, а подо что-нибудь более человеческое. Например, под рейлинговую полку.
10 см на зазор между холодильником и стеной, в зазоре можно проложить канализационную и водопроводные трубы + 60 холодильник + 40 стол с ящиками + 60 мойка + 45 ПММ + 15 бутылочница, нужная только для того, чтобы не ставить ПММ рядом с духовкой + 60 духовка, варка или плита + 15 еще одна нахрен не нужная бутылочница = 310 см.Упс. Пардон, на 5 см просчиталась, не ту кнопку на калькуляторе, наверно, тыкнула.
8 см запас на то-на се, на отделку и на разницу в ваших и их обмерах на зазоры для установки плиты, если плита будет невстраиваемая, и т. д. и т. п.
305 см в сумме, 13 см запас на то-на се.
Это если подешевле и попроще со всей техникой по одной стене, без перепланировок, без сумасшедших переносов мойки куда-нить под окно и без создания фальш-стены, за которой прячутся разные стояки и трубы. А если че-нить выкинуть в большой угол у окна (духовку или холодильник), подоконник задействовать, на трехкомфорочную варку разориться, мойку подобрать какую-нить хирую, чтобы влезала в подстольне не 60, а поменьше, 50 или даже 45, кладовочку прихапать к кухне, или ваще на несущую между комнатой и кухней покуситься, то может получиться поинтересней.
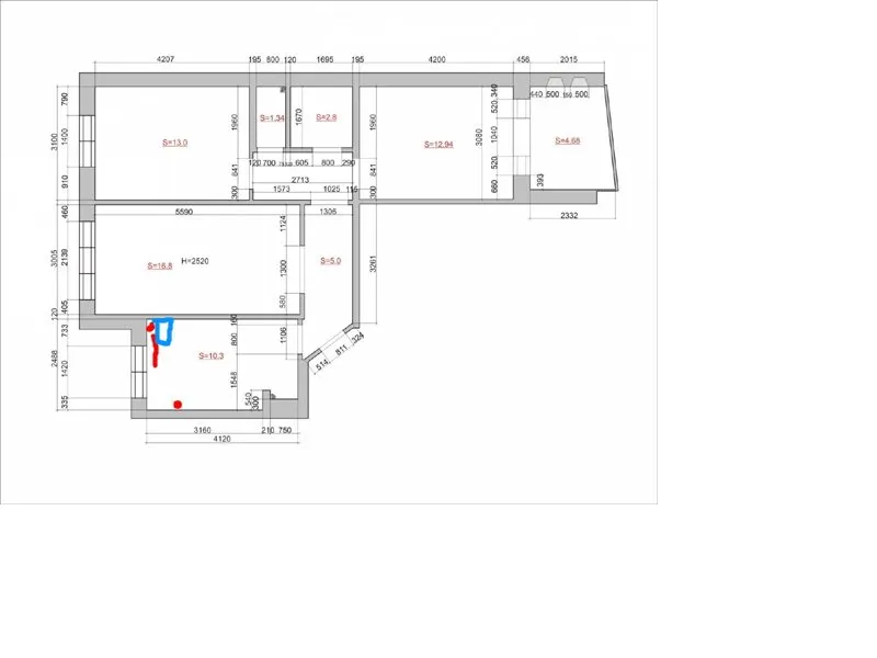
В целом же, если у кухни такая же длина, как на плане "архитекторов", 3180 ммСейчас глянула на данные из БТИ (получали для оформления наследства после смерти брата), там написано, что кухня 2,5 на 3,08 у нас. Я не очень понимаю, как эти архитекторы убрали стену с вентканалами? У нас вент.отверстие почти у двери на кухню. Т.е. там короб идёт. Сейчас картинку вставлю, где отмечу стояк отопления и газовый.
P.S. у нас не будет ПММ Мы неправильные, мы её не хотим.

Красным - это стояк отопления и от него батарея под окно идёт, отдельный красный кружок - газовый стояк. А синий квадрат - это где у нас холодильник стоит и особо его оттуда убирать не хочется. Ну и как-то у нас так получилось, что к прямой кухне в линию, которую поставили родители в 94-м году, добавился кусок вдоль кладовки. Муж мне там тумбочку сделал под планетарный миксер. А сверху на ней живёт микроволновка на самодельной полочке. Поэтому думаю, делать тоже углом.
Кладовка у нас используется очень активно - там вверху подвешен рейлинг (к потолку) и на нём висит верхняя зимняя и осенняя одежда на всю семью. Внизу тоже много чего хранится (банки с вареньем, ёлка новогодняя, сахар и т.д.). Т.е. кладовка неприкосновенна.
И плиту мы несколько лет назад заменили на встройку газовую варочную панель и встроенную духовку электрическую. Муж сделал сам столик для них. У нас возле окна стоял пенал. От него оставили только полочку наверху. А внизу цельно со столом дополнительная тумбочка, только без дверки - не стали морочиться сами делать ещё двери. Т. е. муж начертил усё, в Леруа купили материал, там же распилили по размерам нашим. А дома собрал и встроил технику. И вот уже года 4 пользуюсь.
Блин. А я только что нарисовала те же самые 305 с ПММ 45, но без духовки.
Ссылку на простую рисовалку выше уже давала. Нате еще раз, развлекайтесь
Рисовалка примитивная, сложный П-образный кухонь рисовать не умеет. Угловой кухонь со сторонами разной глубины (например, по одной стороне - 60, по другой - 30 или 40), тоже не умеет. Хотя в модулях можно выбрать нестандарт по глубине, там у них с нестандартом вкладка отдельная.
Но зато простая, и модулей разных много.
А БТИ, если только обмеры не производились недавно и под вашим контролем - ерунда. Смотрите что по факту и сравнивайте с БТИ. А то со старыми БТИ-шными обмерами такой мухлеж и расхождение с фактическими размерами может быть - ужас, ужас.
Двушка, которую хотели переделать в однушку с кухней-гостиной, совмещенным санузлом и спальней на двух супругов. У них такое неприятное расхождение с документами БТИ было... Голову ломали, а как бы ошибки в документах БТИ использовать при перепланировке в свою пользу и сделать то, что часто делать запрещают. Например, кухней вылезти под соседский санузел, или наоборот, своим санузлом вылезти над соседской кухней.
Санузел в длину по факту - 1,5 метра. По документам БТИ - 1,7. Кухня по факту меньше 2 метров в ширину, по документам БТИ - 2.1 м.
Площадь кухни по факту -5 квм. Площадь кухни по БТИ - 6 кв. м. Часть коридора суки БТИшные к кухне приплюсовали, прикрывали строителей.
Общее расхождение между фактической площадью квартиры и площадью по документам БТИ - порядка 3 квадратных метров. Тоже головоломка, а чо делать и как объяснять, куда в результате перепланировки деваются 3 кв. м. То ли сначала требовать, чтобы обмеры БТИ привели в соответствие с фактическими размерами. то ли в тряпочку молчать, перестраивать санузел и кухню так, чтобы были побольше и совпадали с обмерами БТИ, а про недостающие 3 кв. м. врать, что это комнаты неправильно измерены были.
С какой хочешь ПММ, с какой хочешь плитой и мойкой. Тут вы и без посторонней помощи, думаю, справитесь. Успехов.

Ссылку на простую рисовалку выше уже давала. Нате еще раз, развлекайтесь
Рисовалка примитивная, сложный П-образный кухонь рисовать не умеет. Угловой кухонь со сторонами разной глубины (например, по одной стороне - 60, по другой - 30 или 40), тоже не умеет. Хотя в модулях можно выбрать нестандарт по глубине, там у них с нестандартом вкладка отдельная.
Но зато простая, и модулей разных много.
А БТИ, если только обмеры не производились недавно и под вашим контролем - ерунда. Смотрите что по факту и сравнивайте с БТИ. А то со старыми БТИ-шными обмерами такой мухлеж и расхождение с фактическими размерами может быть - ужас, ужас.
Я однажды развлекалась рисованием одной хрущевки.
Двушка, которую хотели переделать в однушку с кухней-гостиной, совмещенным санузлом и спальней на двух супругов. У них такое неприятное расхождение с документами БТИ было... Голову ломали, а как бы ошибки в документах БТИ использовать при перепланировке в свою пользу и сделать то, что часто делать запрещают. Например, кухней вылезти под соседский санузел, или наоборот, своим санузлом вылезти над соседской кухней.
Санузел в длину по факту - 1,5 метра. По документам БТИ - 1,7. Кухня по факту меньше 2 метров в ширину, по документам БТИ - 2.1 м.
Площадь кухни по факту -5 квм. Площадь кухни по БТИ - 6 кв. м. Часть коридора суки БТИшные к кухне приплюсовали, прикрывали строителей.
Общее расхождение между фактической площадью квартиры и площадью по документам БТИ - порядка 3 квадратных метров. Тоже головоломка, а чо делать и как объяснять, куда в результате перепланировки деваются 3 кв. м. То ли сначала требовать, чтобы обмеры БТИ привели в соответствие с фактическими размерами. то ли в тряпочку молчать, перестраивать санузел и кухню так, чтобы были побольше и совпадали с обмерами БТИ, а про недостающие 3 кв. м. врать, что это комнаты неправильно измерены были.
А синий квадрат - это где у нас холодильник стоит и особо его оттуда убирать не хочется.А, ну если холодильник хотите в том углу, тогда вообще без проблем все расставляется.
С какой хочешь ПММ, с какой хочешь плитой и мойкой. Тут вы и без посторонней помощи, думаю, справитесь. Успехов.
Я не очень понимаю, как эти архитекторы убрали стену с вентканалами?Да также, как часть несущей между комнатой и кухней. Не заморачиваясь законностью перепланировки. «архитекторы» же.
ну если холодильник хотите в том углуТак удобно сидеть и опираться на него спиной
Спасибо за помощь в расстановке мозгов на место! буду кухню рисовать понемногу.
Ну, если привыкли, так пусть остается.
В углу, где стояки, его воткнуть сложней, трасса канализационная кривая получается, зазор между холодильником и стеной приходится закладывать большой. Я про это в минусах компановки всей техники в линию писала, и про то, что кухня получится интересней, если холодильник выкинуть в другой угол или в кладовку, тоже говорила.
Я ж не знаю, какие у вас планы на большой угол у окна. А может, вы в него диван захотите поставить.
или, может, вам колонна с духовкой и микроволновкой в углу, где батарея, покажется милей, чем духовка под варкой....
В углу, где стояки, его воткнуть сложней, трасса канализационная кривая получается, зазор между холодильником и стеной приходится закладывать большой. Я про это в минусах компановки всей техники в линию писала, и про то, что кухня получится интересней, если холодильник выкинуть в другой угол или в кладовку, тоже говорила.
Я ж не знаю, какие у вас планы на большой угол у окна. А может, вы в него диван захотите поставить.
или, может, вам колонна с духовкой и микроволновкой в углу, где батарея, покажется милей, чем духовка под варкой....
мы её не хотимАнна, вот чесслово, я тоже не хотела ПММ. Т. к. посуд мыли муж и сын. Это их привилегия была. Но просчитались с одной перегородкой. и пришлось ставить ПММ. Полгода стояла мебелью. А потом попробовала. Теперь не оттащишь. Анна, это очень удобно, поверь.
Отпечатки не видно на матовомЕще как видно.
Что-то у меня сегодня день ошибок в расчетах.
Перегрев цп головного мозга из-за жары.
На этой картинке тоже ошиблась, в таком варианте не 300, а 150 от варки до края последнего модуля получается. 300 может получиться с варкой на 3 конфорки. И между мойкой и варкой не получится 750, получится 600. Т. е. так:
И с какой же матовой плиткой вы столкнулись, что на ней было видно отпечатки пальцев?
Или вы про мебель? А с мебелью смотря какого цвета матовый. На мебели и дверях светлых оттенков пальцы долго не видно. На всяких венгистых венге будет видно каждый палец.
Тоже самое с техникой. На черном и на нержавейке будет виден каждый палец. На белом матовом должно быть сильно замацано, чтобы стало видно.
Главное, не прощелкать момент, когда сборщики будут ручки прикручивать к мебели.
Я вот в своей старой косячной кухне такой столик запланировала и заказала. Но расслабилась во время сборки. И мне на фасад на этом столике ручку прикрутили, как на обычную распашную дверцу сбоку... Такой вот глупый косяк вышел. Теперь если на место столика ставить ПММ, придется или ручку перекручивать и отверстия замазывать (на МДФ в пленке очень «красиво» получится, ага), либо менять фасад.
Вообще же со временем пришла к выводу, что все ручки на распашных фасадах надо было прикручивать по центру фасада, т. е. так:
и не слушать сборщиков, которые убеждали, что ручка по центру - это «не по-человечески, а модная дизайнерская придурь», и что удобней будут ручки сбоку т. е. так:
. Сбоку оно действительно эргономичней и удобней... Однако по сравнению с ручкой по центру отличие в удобстве не кардинальное. А вот на случай всяких перестановок и перевесок (мало ли, захочется сделать в каком-то шкафчике другое направление открывания дверцы) ручка по центру однозначно лучше. Отверстия под петли можно и пересверлить, а старые закрыть мебельными заглушками. А вот сквозные отверстия под ручку легко не замаскируешь и они на виду.
Перегрев цп головного мозга из-за жары.
На этой картинке тоже ошиблась, в таком варианте не 300, а 150 от варки до края последнего модуля получается. 300 может получиться с варкой на 3 конфорки. И между мойкой и варкой не получится 750, получится 600. Т. е. так:

Еще как видно.Это мы про плитку сейчас опять?
И с какой же матовой плиткой вы столкнулись, что на ней было видно отпечатки пальцев?
Или вы про мебель? А с мебелью смотря какого цвета матовый. На мебели и дверях светлых оттенков пальцы долго не видно. На всяких венгистых венге будет видно каждый палец.
Тоже самое с техникой. На черном и на нержавейке будет виден каждый палец. На белом матовом должно быть сильно замацано, чтобы стало видно.
Анна, вот чесслово, я тоже не хотела ПММ. Т. к. посуд мыли муж и сын. Это их привилегия была. Но просчитались с одной перегородкой. и пришлось ставить ПММ. Полгода стояла мебелью. А потом попробовала. Теперь не оттащишь. Анна, это очень удобно, поверь.А можно вместо ПММ запланировать какой-то столик с дверцей. И потом когда созреют поставить ПММ, этот модуль убрать, а на его место поставить ПММ и повесить фасад от столика.
Главное, не прощелкать момент, когда сборщики будут ручки прикручивать к мебели.
Я вот в своей старой косячной кухне такой столик запланировала и заказала. Но расслабилась во время сборки. И мне на фасад на этом столике ручку прикрутили, как на обычную распашную дверцу сбоку... Такой вот глупый косяк вышел. Теперь если на место столика ставить ПММ, придется или ручку перекручивать и отверстия замазывать (на МДФ в пленке очень «красиво» получится, ага), либо менять фасад.
Вообще же со временем пришла к выводу, что все ручки на распашных фасадах надо было прикручивать по центру фасада, т. е. так:


и не слушать сборщиков, которые убеждали, что ручка по центру - это «не по-человечески, а модная дизайнерская придурь», и что удобней будут ручки сбоку т. е. так:


. Сбоку оно действительно эргономичней и удобней... Однако по сравнению с ручкой по центру отличие в удобстве не кардинальное. А вот на случай всяких перестановок и перевесок (мало ли, захочется сделать в каком-то шкафчике другое направление открывания дверцы) ручка по центру однозначно лучше. Отверстия под петли можно и пересверлить, а старые закрыть мебельными заглушками. А вот сквозные отверстия под ручку легко не замаскируешь и они на виду.
Анна, это очень удобно, поверь.Верю. Но во-первых, я не вижу в ней особого смысла для себя. Во-вторых, у меня есть очень упёртый в этом вопросе муж и он категорически не хочет ПММ. Посуду моет без проблем и частенько мне даже не даёт её мыть. Т. е. мне её особо много мыть и не приходится. Так что верю, но покупать ПММ вряд ли будем.
Так что верю, но покупать ПММ вряд ли будем.Может, на всякий случай рядом с мойкой столик с фасадом 45 или 60 запланируете?
renard, посмотрим
60 запланируете?Да, тоже хотела предложить. Жизнь - она меняется. Седня так, завтра эдак.
А тут раз... а мы уже готовы))))))
На 60 лучше.
На 60 лучше.
А на 45 красивше при их длине получается...
Допустим... Угловая мойка с немного нестандартным подстольем, шириной не 1000, а 1050.
С 45 фасадом.
1050 мойка + 450 ПММ + 450 столик с ящиками + 600 духовка, варка + 450 столик с ящиками = 3000.
8 см запас на отделку и прочую фигню. И сбоку от мойки что пристроят... Если длина стены кладовки примерно как у архитекторов на плане, т. е. 154 см, то по стене кладовки поместятся какие-то модули длиной 90 см. Т.. е. опять может быть нечто с 45 фасадами.
Я, правда, не понимаю, как у Анны обеденный стол стоит и каких он размеров, что сидя за столом об холодильник удобно опираться спиной.
Длинный узкий столик поперек кухни что ли?
Возможно, чтобы места под стол было побольше и проходы по кухне поприличней, надо по длинной стороне сделать модули стандартной глубины, а по короткой, вдоль стены кладовки, менее глубокие.
Вот видос с 2 решениями, которые могут пригодиться Ане:


угловая кухня, правда, короче. Одна сторона стандартной глубины, вторая - нестандарт, менее глубокий. И вторая фишка - это скошенный модуль возле плиты из-за слишком узкого простенка у окна, которое ниже кухонных столов.
Длинный узкий столик поперек кухни что ли?Стол 90х60см. Стоит длинной стороной вдоль стены. От холодильника до стола 54см. Там помещается даже моя мама 62 размера. Это вообще, её место изначально Но когда её на кухне нет, то я там сижу Стол стоит вплотную к стене, используем три посадочных места.
Возможно, чтобы места под стол было побольше и проходы по кухне поприличней, надо по длинной стороне сделать модули стандартной глубины, а по короткой, вдоль стены кладовки, менее глубокие.Да, оно примерно так и есть - старая кухня глубиной 60см, стоит вдоль длинной стены. А вдоль кладовки тумбочка 40см глубиной сделана.
А окно выше или ниже кухонных столов?
Если чуть выше - отлично. Если ниже - тогда придется вам поколдовать с модулем у окна.
Или кардинально решить вопрос с окном - заменить.
Если чуть выше - отлично. Если ниже - тогда придется вам поколдовать с модулем у окна.
Или кардинально решить вопрос с окном - заменить.
на 45 красившетак, нам функционал или красоту?
так, нам функционал или красоту?А это пусть хозяйка кухни решает.
Она вообще пока ПММ не хочет.
Да, оно примерно так и есть - старая кухня глубиной 60см, стоит вдоль длинной стены. А вдоль кладовки тумбочка 40см глубиной сделана.Ну и колдуйте дальше нестандарт. Угловую прямогольную мойку переделать не очень большая проблема. Корпус с невидной стороны, примыкающей к углу, упилить, фасад останется таким же. А можно фасад побольше, не стандартный 40, а 45 или даже 50, чтоб лаз в мойку пошире был, и плюс корпус упилить.
пока ПММ не хочетВремя есть. Пусть шкаПчик пока будет. Но он не удооообный будет, до безобразия. Ни два, ни полтора
Во-вторых, у меня есть очень упёртый в этом вопросе муж и он категорически не хочет ПММ. Посуду моет без проблем и частенько мне даже не даёт её мыть. Т. е. мне её особо много мыть и не приходится.А белье он тоже стирает, или стиралка автомат? Вот пмм тоже самое, это такая же нужная вещь, даже необходимая, как стиралка. И муж никогда не отмоет так, как моет пмм. После его мытья посуда не хрустит от чистоты.
Я, например, теперь сразу замечаю, кто посуду моет. И иду перемывать после мытой руками посуду, так как мне она, после идеально чистой из пмм, неприятна тактильно, вот грязная она.
Светлана, тут я поспорю. Как моет муж - это просто песня!
А окно выше или ниже кухонных столов?К сожалению, чуть ниже существующих. А я хочу ещё см на 10 повыше. Сейчас столы 84см в реале (когда-то цоколь заменили на ножки, возможно поэтому не 85). Мне категорически не хватает высоты, у меня рост 176см.
Но он не удооообный будет, до безобразия. Ни два, ни полтораНу, не такой уж неудобный. Я пользуюсь шкафчиком с распашным фасадом 50. С полками. Не фонтан, конечно, с корзиной выдвижной или с ящиками был бы гораздо удобней.
Но все мои кастрюли в стопочках в этот столик помещаются. И в него можно складировать очень тяжелые предметы, например, стратегический запас муки, крупы и канистры спирта в случае подготовки к карантину. Полки уж точно выдержат.
А ящики - смотря какие и с какой фурнитурой. Дешевенькие могут и не выдержать такой вес.
Выдвижная корзина в базу 45 или 60 может поправить неудобство глубокого шкафчика с распашным фасадом. Правда, решение с выдвижными корзинами не дешевое.
просто с дверцей:

С фасадным креплением:

.
после посудомойки грязная? СтранноЛелька, наверно чутка косноязычно написала, мытая руками сразу видна, она не хрустит от чистоты. Липкая какая то. Я там выше, расставила запятые и чуть подкорректировала мысль.
]
чуть подкорректировала
ага.. а для того чтобы от туда достать, с этих полок..Да ладно преувеличивать то. Просто нагнитесь. Выньте то, что стоит с края, достаньте то, что стоит глубоко. Я согласна, внизу в глубоких столах лучше ящик, чем дверца. Но один столик с полками для чего-нить тяжелого - не охренеть, какое неудобство.
Лягте на пол.. три, четыре... и шарьте лёжа... ужОс нашего городка...
И что за двойные стандарты?
Как кухня с «творческим» срачем, нижними столами преимущественно с распашными фасадами, «пентагоном» в углу и жутким верхним рядом - так «А чо вас так испугало и что здесь такого ужасного? Нормальный кухонь». А как какой-то одинокий 45-й столик с полочками на всякий пожарный случай, если захочется ПММ, так «Ужос нашего городка».
А что, 60-й столик с распашным лопухом лучше что ли будет? В нем не прийдется «шарить лежа»?
К сожалению, чуть ниже существующих. А я хочу ещё см на 10 повыше. Сейчас столы 84см в реале (когда-то цоколь заменили на ножки, возможно поэтому не 85). Мне категорически не хватает высоты, у меня рост 176см.Ждитя... Ща картинку раскопаю с окном, которое ниже кухонных столов. Где-то я ее в фотках хрущевок видела. Там идея такая - внизу во всю длину окна глухарь.
Глухарь сбоку у окна, при таком решении надо выбрать, кого из членов семьи не жалко отправлять мыть окно на кухне. )))
Откопала таки. Правда, на фотке глухарь во все окно сделан не потому, что окно ниже кухонных модулей, а чтобы задействовать широкий хрущевский подоконник. Страшненько, но функционально.
А если ничего с окном не делать, тогда, наверно, вариант как у тети из хрущевки с видео выше - скошенный модуль между плитой и окном. Одна створка окна полностью открываться не будет, только на угол. Но это лучше, чем вообще глухарь, который мыть с риском для жизни.
А еще можно попробовать посчитать компановку с неглубоким пеналом между плитой и окном. Но че-та мне кажется, испортит там все пенал. Скос, как у тети из хрущебы, лучше.
А если откосы огромные, как в некоторых сталинках и хрущевках, то люди ничего не делают, когда простенок под установку мебели узкий и кухонные столы выезжают за окно. Просто одна створка окна полностью не открывается, только на угол:


60-й столик с распашным лопухом лучше что ли будет?очень удобно.
при таком решении надо выбрать, кого из членов семьи не жалко отправлять мыть окно на кухне. )))Нам всех жалко, поэтому окна у нас распашные все, кроме окна, которое на балкон выходит. Но теперь и его хотим заменить на распашное, попутно увеличив чуток дверь балконную. А то для проветривания в холодное время года не очень удобно - дует прям на спальное место. А если окно открыть, то дуло бы на шкафы. А все остальные окна у нас полностью открываются. И глухое точно ставить не будем, лететь с 8-го этажа высоко будет.
Корзинка недорогая в скошенный модуль. В базу 300:
похожая дорогая:
Это если использовать решение со скосом у окна, как у тети из хрущевки и в проекте у «архитекторов» (у них там тоже у окошка скос нарисован).
засрать заставить всякими полезными вещами, если он у вас широкий...
Хотя, с другой стороны, если подоконник очень широкий, то можно и не заморачиваться, что окно ниже мебели, а мебель выезжает за окно и мешает окну открываться.. На угол будет одна створка открываться.
А сейчас то вопрос с открыванием створки окна возле кухонной мебели как у вас решен?
И что стоит между плитой и окном?
Как то же вы это окошко для помывки открываете, наверно... На угол? Врезается в мебель? Или между окошком и плитой что-то неглубокое?
Вспомнила. В Мерленовских кухнях есть скошенные полки и столы шириной 40 см.
Я так думаю, именно для таких случаев, когда простенок под установку кухни у окна слишком узкий.
И для любителей скошенных углов в проходных местах.
Вот корпус такого столика в каталоге Мерлена, можно размеры срисовать:
Вот скошенная полка, но она вам вроде не нужна, под полки ширины простенка, судя по чертежу «архитекторов», если и не хватает, то совсем чуть-чуть. Это нижние столы на окно сантиметров на 30 заезжают. Ну, может, кому-то еще пригодится, у кого такой же узкий простенок у окна.
Не знаю, какой ширины фасад идет под эти скошенные модули. Наверно, 40.

похожая дорогая:

Это если использовать решение со скосом у окна, как у тети из хрущевки и в проекте у «архитекторов» (у них там тоже у окошка скос нарисован).
И глухое точно ставить не будем, лететь с 8-го этажа высоко будет.Из хрущебы, вариант с глухарем внизу во все окно не такой опасный, как глухарь сбоку. И подоконник можно
Хотя, с другой стороны, если подоконник очень широкий, то можно и не заморачиваться, что окно ниже мебели, а мебель выезжает за окно и мешает окну открываться.. На угол будет одна створка открываться.
А сейчас то вопрос с открыванием створки окна возле кухонной мебели как у вас решен?
И что стоит между плитой и окном?
Как то же вы это окошко для помывки открываете, наверно... На угол? Врезается в мебель? Или между окошком и плитой что-то неглубокое?
Вспомнила. В Мерленовских кухнях есть скошенные полки и столы шириной 40 см.
Я так думаю, именно для таких случаев, когда простенок под установку кухни у окна слишком узкий.
И для любителей скошенных углов в проходных местах.
Вот корпус такого столика в каталоге Мерлена, можно размеры срисовать:
Вот скошенная полка, но она вам вроде не нужна, под полки ширины простенка, судя по чертежу «архитекторов», если и не хватает, то совсем чуть-чуть. Это нижние столы на окно сантиметров на 30 заезжают. Ну, может, кому-то еще пригодится, у кого такой же узкий простенок у окна.
Не знаю, какой ширины фасад идет под эти скошенные модули. Наверно, 40.
Небольшие кухни













.
Правда, на фотке глухарь во все окно сделан не потому, что окно ниже кухонных модулей, а чтобы задействовать широкий хрущевский подоконник. Страшненько, но функционально.Интересное решение!
.
А вдоль кладовки тумбочка 40см глубиной сделана.Прикинула вашу кухню со столиком, который можно поменять на ПММ, и с закругленным или скошенным модулем 30 между «основным» гарнитуром и окном и с такой же «пристроечкой» вдоль кладовки, как у вас сейчас.

По длине можно сыграть фасадом и фальш-панелями мойки, если влезать не будет.
Вы ведь писали, что по БТИ длина кухни 308, а я посчитала кухню длиной 305. 3 см на отделку может не хватить.
Если не хватит, то фасад у мойки получается не 45, а 40, и длина мойки не 90, а 85.
30 модуль в конце может быть и не радиусным, в рисовалке просто нет 30 со скосом и фасадом.
Так себе получилось... Столики с ящиками мелковаты. Они могут быть больше, если не пихать у окна 30-й модуль.
Я 30-ку такую там нарисовала исключительно из-за окна.
А вопрос с открыванием окна можно решить и без дурацкой скошенной 30-ки. Вот если бы знать, что у вас с открыванием окна сейчас...
А если без 30-ки не обойтись, то я уже готова согласиться с вашим супругом, что ПММ не нать. Лучше здоровый стол с ящиками шириной 80 см, чем два столика 45+40.
На Таганке тоже внизу глухое.Это уж очень большой глухарь внизу. Они, наверно, чтобы окно вымыть, на улицу выходят.
А у Анны то не 1-й этаж. Так что ей если окошко делать с глухарем внизу, то с невысоким.
А с невысоким глухарем окошко выглядит страшновато. Хотя функциональненько. Если на подоконнике что-то будет стоять, должно быть удобно. Ничего на подоконнике двигать не надо, чтобы окно открыть.
Еще вариантец.
С огромными ящиками, плитой очень далеко от окна (гарантированно никакие брызги с плиты не долетят до стекол), и с СВЧ напротив холодильника (ближе идти разогревать или размораживать, стол обеденный обходить не надо).

305, если после отделки такое не влезет, придется еще немножко уменьшить по длине мойку и по глубине пристройку. Или модули с большими ящиками зарезать. С открытием окна вопрос решать как-то без скошенной фигулины, другими методами.
С длиной 308 много чего можно насочинять. Если бы не узенький простенок под установку кухни у окна - очень хороший размер, есть, где развернуться.
Вспомнила один видос про ремонт в хрущебе, который когда-то смотрела, и в котором есть еще решение с окном.
Неопрятная женщина с грязной головой рассказывает про свою неубранную П-образную кухню в хрущевке, заплетенную в том числе вокруг окна.
Примерно с 4-54 рассказ про окно. Там решение примерно такое же, как в хрущевке с глухарем вдоль окна снизу. Поставили внизу глухарь и похоронили его под мебелью.


Блин, это она будет стоять на столешке, чтобы окно помыть снаружи?
renard, спасибо за идеи. Я всё копирую себе в файлик
renard, спасибо за идеи. Я всё копирую себе в файлик
Блин, это она будет стоять на столешке, чтобы окно помыть снаружи?Это вы про женщину с немытой головой с П-образной кухней? Ну да. В их кухне кому-то придется залезать на столешку и вывешиваться наружу, чтобы вымыть вертикальный глухарь над мойкой.. Впрочем, как и хозяевам других кухонь на фотках выше, где подоконник выполняет роль рабочей поверхности. только им не будет так сложно стоять на подоконнике, у них ведь не будет мойки и смесака под ногами. Хотя с другой стороны, этой, с немытой головой, воду для мытья окна набирать и менять ближе.
Вы лучше скажите, на каком расстоянии от угла находится у вас газовый стояк, есть ли газовый счетчик. Если есть, то какие у него размеры и расположение. Что с открыанием окна и какие у окна параметры? Высота от пола? Ширина створки сбоку от мебели? Глубина подоконника? Размер выноса подоконника? Размер и угол рассвета откосов?
просто если откосы широкие, как в хрущевке или сталинке, створка с той стороны окна, где мебель, узкая и открывается на приличный угол, но врезается в мебель, так может, и не морочиться с тем, что нижние столы наезжают на окно.
Если угол рассвета у откосов здоровый, его можно сделать поменьше, тогда простенок под установку кухни станет побольше.
Я всё копирую себе в файликпоследние два по-моему удачные получились по расположению плиты. Плита далеко от окошка, на стекла и шторы уж точно ничего с плиты не долетит.
Со шторами то засада, если мебель до конца стены и выезжает за окно.
Разве что кухню в стиле прованс, он же кантри, он же по-русски «деревенский» или «колхозный» забацать (если, конечно, он вписывается в общий стиль квартиры) и карниз-кафе на окно воткнуть.
Удобный для разведения «творческого» срача стиль. Типа, так и задумано, это не технику и мелкую утварь ставить некуда, это дизаен такой.
Самый компактный и простой в уходе вариант шторок. Снять, постирать просто.
Это вам не мини-кассетные рулонные, которые еще компактней, но легко не снимешь и не постираешь...
Карниз-кафе - это такая планочка, которая крепится прямо на окна. И на нее нанизываются шторы. Как в поезде. Специфическая вещь, с кухней в каком-нибудь минималистичном стиле будет выглядеть нелепо.


Мини-кассетные рулонные, очень компактные, но в уходе сложные:

А можно просто кухню до конца стены не доводить. Оставить сантиметров 20 между мебелью и окном на шторы. Тогда выбор карниза и штор получится попроще и посвободней, и створка окна уж точно на хороший угол откроется. Я уже на своем окне прицелилась...
Как бы прованс:
И вот попалось, тоже прованс, с неглубокой витриной между окном и плитой.

Я такую идею озвучивала. Но когда попробовала посчитать и нарисовать, показалось, что получится плохо. Я с неглубоким пеналом шириной 40 см считать пыталась.
Мне показалось, что 40 будет очень узко, чтобы подойти к пеналу. И угол, торчащий на пути к пеналу, не понравился. На картинке то витрина целая на 80, это совсем другой размерчик.
А в ваши 3,08 не лезет такое. 60, может быть, впихнется. Но тогда придется уменьшать расстояние между мойкой и плитой. Попробуйте еще сами воткнуть неглубокий пенал возле окна. Тоже ведь выход, и с окном, и со шторами...
Тоже как бы прованс. С любимым печворком Лельки. И сложным переносом мойки под окно.
Я так думаю, это не реальная кухня, а дизайнерская визуализация какого-то проекта. Может быть, даже для квартиры в вашей серии, уж больно габариты похожи. Такое реализовать не каждый владелец квартиры решится.
С окном и шторой наглядно, что получается:

Еще прованс с маленьким простенком у окна под установку кухни. Плита совсем близко к окну и шторе:

Холодильник в углу возле стояков я уже тоже рисовала, только кухню не пыталась вокруг окна заплести и засунуть мойку так близко к холодильнику не предлагала.
Опять прованс, маленький простенок под установку кухни, рулонная штора, с ней окно неудобно настежь открывать:


Жалюзи, компактно, но не в тему выбранного стиля:

Нестандартный ход. Холодильник наезжает на окно:


У одних моих знакомых в малогабаритной кухне в панельке именно так холодос стоит. Часть окна закрывает, створка окна со стороны холодильника только на небольшой угол открывается. Зато он у них под рукой и не в «теплом» углу возле батареи, и со шторами проблем нет, и с высотой кухни... А если окошко надо помыть, то холодос можно и извлечь из угла.
Какая-то непонятная маленькая скошенная хренька внизу возле окна:

Итого, примерные варианты решения вопроса с узким простенком у окна под установку кухни набираются такие:
1) не доводить кухню до конца стены, оставить дырку шириной около 20 см между кухней и окном для открывания окна на угол и штор.
2) довести кухню до конца, если ширина откоса большая и позволяет открываться окну на угол.
3) засунуть между «основным гарнитуром» и окном какой-то скошенный модуль
4) засунуть между «основным гарнитуром» и окном неглубокий пенал
5) засунуть между «основным гарнитуром» и окном невстраиваемый холодильник
6) заменить окно на окно с глухарем внизу
Вы лучше скажите, на каком расстоянии от угла находится у вас газовый стояк, есть ли газовый счетчик. Если есть, то какие у него размеры и расположение. Что с открыанием окна и какие у окна параметры? Высота от пола? Ширина створки сбоку от мебели? Глубина подоконника? Размер выноса подоконника? Размер и угол рассвета откосов?Постараюсь нарисовать кухню с размерами в эти выхи. Пока могу сказать, что простенок у окна.... тадам - 59см. Если чуть пооправить откос, то можно постараться и 60 получить. И поменять подоконник, чтобы не вылезал за границу окна. Если створка не будет распахиваться на 90 с копейками градусов - это не страшно.
Поэтому думаю над пеналом у окна, прям узком совсем. И думаю (ну мечтать же не вредно?), можно ли духовку приподнять на половину высоты, на ней сверху будет микроволновка. А варка сдвинется в сторону мойки. Но сколько останется тогда под рабочую поверхность?!
Вот там на фото, где как бы прованс, мойкой удобно будет пользоваться при таком расположении?
Пока могу сказать, что простенок у окна.... тадам - 59см.Ну что ж вы так... )))
Сказали бы сразу, а я тут целую коллекцию картинок с узким простенком под установку кухни насобирала, ориентируясь на размеры, указанные на плане «архитекторов», т. е. 33 см.
А 59 см это почти почти под установку кухни.
Можно пытаться холодос не в теплый угол поставить. А на место холодоса колонну с духовкой и СВЧ, чтоб маме было на что облокачиваться.
Вот там на фото, где как бы прованс, мойкой удобно будет пользоваться при таком расположении?Сомневаюсь, что будет удобно. Во-первых, маленькое расстояние от мойки до плиты, во-вторых, чаша мойки сильно сдвинута к стене.
Зуб могу дать, что неудобства не будет, если в угловом подстолье под мойку с фасадом 40 чашу мойки расположить максимально близко к краю подстолья.
Сама таким пользуюсь.
Ну, т. е. если чаша распложена вот так:
То точно будет нормально. А если мойка будет с небольшим крылом, то в тот угол можно еще всяких рейлинговых штук понавесить. Например, полку для досок или держатель для крышек. Или даже настольную сушку влепить.
Если как на той фотке - я сомневаюсь, что будет хорошо.
Хотя нет... Насчет настольной сушки - это я переборщила. У вас же подстолье под мойку получается урезанное, не 100, а 90-85. Сушка мешаться может... Че-та маленькое в угол поместится. Полка для разделочных досок сбоку от мойки точно мешать не будет.
Можно пытаться холодос не в теплый угол поставить. А на место холодоса колонну с духовкой и СВЧ, чтоб маме было на что облокачиваться.Посчитала. Не... После предложений сделать рабочие поверхности по 80 см между мойкой и плитой и плитой и окном вам, наверно, не понравится вариант «холодильник не в теплом углу».
10 см зазор между стеной и холодильником, чтобы дверца нормально открывалась. +
60 холдос + 30 столик между холодосом и плитой + 60 варка и духовка или ящики + 85 мойка = 245
308 - 245 -= 63 см.
Это столько остается на запас на отделку и рабочую поверхность / столик между мойкой и плитой. При хорошем раскладе между мойкой и плитой может быть, поместится столик с ящиками шириной 60 см.
А на месте холодильника тогда получается пенал с нишей под СВЧ. Или колонна с духовкой и СВЧ.
А смысл менять местами колонну для духовки с свч и холодильник? Почему колонну эту у окна нельзя поставить?
А смысл менять местами колонну для духовки с свч и холодильник?Ну это уж вам решать, есть смысл или нет, что вам больше нравится и как для вас лучше.
Во-первых, холодильник рядом с источником тепла вообще-то не очень хорошо. Не все владельцы готовы поставить свой холодильник рядом со стояком отопления или батареей. Если читали обсуждение кухни Блекаутов, так там родители были категорически против установки холодильника в «теплый угол», даже при условии теплоизоляции стояка. Очень берегли свой либхер, были готовы поставить его куда угодно, даже на входе в кухню, лишь бы ему не было жарко. Я их вполне понимаю, себе холодильники рядом с батареями я не ставила никогда. Тоже жалко было технику.
А вот духовке с микроволновкой теплый угол пофигу, они для того и сделаны, чтобы греть и не бояться тепла.
Во-вторых, холодильник рядом с кухонным гарнитуром, под рукой, удобней во время готовки, далеко бегать не надо.
В-третьих, конкретно в вашем случае с пожеланиями сделать кухонные столы повыше, холодильник не в теплом углу частично избавляет от сложностей со шторами и перепадом высоты между подоконником и столешкой кухни.
С другой стороны... Невстроенный холодильник не всегда хорошо сочетается с выбранной мебелью. Некоторые эстеты выстраивают специальные ниши под холодильник, выкидывают отдельно стоящий холодильник в противоположный угол кухни, как у вас, или в кладовку, или в коридор, если планировка позволяет, лишь бы он не был рядом с мебелью. Настолько он травмирует их чувства прекрасного, когда стоит рядом с кухонным гарнитуром. Встройку не хотят, потому что в нее помещается меньше и она обходитя дороже, но при этом вид невстроенного холодоса рядом с мебелью таких людей сильно огорчает..
Это во-первых. А во-вторых, конкретно в вашем случае, с холодильником не в теплом углу рабочих поверхностей получается меньше.
И тут кроме вас никто лучше не решит, как должно быть на вашей кухне. Холодильник в безопасном для него углу и под рукой, но рабочих поверхностей поменьше, или рабочих поверхностей побольше и пожирней, а холодильник сам по себе.
Ну и вообще... Колонну с СВЧ и духовкой я в вариантах, когда холодильник стоит у батареи, не предлагала. Во-первых, потому, что не знала, что простенок под установку кухни нормальной ширины, а не 33 см. Куда же в 33 см пихать колонну то...
И, во-вторых, не хотела уменьшать вам рабочие поверхности и вообще сильно отклоняться от вашей текущей компановки.
Колонну из СВЧ и духовки я озвучила только когда вы написали, что размер простенка 59.
Завтра если буду бездельничать, поразвлекаюсь рисованием вариантов с учетом новых вводных.
Ну за 17 лет с холодильником в теплом углу ничего у нас не случилось. Правда, у нас Атлант, а не Либхер. Думаю, что и дальше с ним ничего не случиться. Стоит он на расстоянии от стояка. По поводу бегать, так это не про нашу кухню. Я понимаю, что бывают и меньше, но у нас тоже особо не разбегаешься.
А от перепада, в принципе, должна спасать любая колонна или пенал.
И да. Как я понимаю, что духовка под варочной даёт хорошую рабочую поверхность. Попытка приподнять духовку создаёт напряг с этой поверхностью.
Кстати, на последнем фото мойка повёрнута на короткую сторону буквы Г. А там глубина стола при этом меньше 60? Или при таком варианте нужно 60 и по этой стороне делать?
А от перепада, в принципе, должна спасать любая колонна или пенал.
И да. Как я понимаю, что духовка под варочной даёт хорошую рабочую поверхность. Попытка приподнять духовку создаёт напряг с этой поверхностью.
Кстати, на последнем фото мойка повёрнута на короткую сторону буквы Г. А там глубина стола при этом меньше 60? Или при таком варианте нужно 60 и по этой стороне делать?
Кстати, на последнем фото мойка повёрнута на короткую сторону буквы Г. А там глубина стола при этом меньше 60? Или при таком варианте нужно 60 и по этой стороне делать?Да, придется сделать 60. Правда, я в тему притаскивала видео, где смогли сделать чуть меньше.
Но там кухня явно совсем не дешевая, и девушка рассказывала, что с таким нестандартом, как мойка глубиной 50 ее куча мебельщиком послала в эротическое путешествие.
Сейчас отмотаю тему назад, дам ссылку на тот видос.
И да. Как я понимаю, что духовка под варочной даёт хорошую рабочую поверхность. Попытка приподнять духовку создаёт напряг с этой поверхностью.Да. В том числе поэтому я колонну и не предлагала, пока не выяснилось, что в «холодный» угол влезает холодильник. Во-первых, по размерам «архитекторов» думала, что колонна там просто не поместится, загородит окно. Во-вторых, не хотела рабочие поверхности маленькие рисовать.
Видос про угловую кухню с подстольем нестандартной глубины под мойку:


И заодно фотка с какой-то колонной и холодосом друг напротив друга, которая уже была в теме:
Интересное в разделе «Ремонт и меблировка жилья»









Новое на сайте














